




S konzolí 250 mm a 500 mm


| Verze | | Kombinování několika prvků umožňuje výškové nastavení pracovní desky, dokonce i tvaru L nebo tvaru UOvládání tlačítkovým spínačemS konzolí 250 mm a konzolí 500 mm | Kombinování několika prvků umožňuje výškové nastavení pracovní desky, dokonce i tvaru L nebo tvaru UOvládání tlačítkovým spínačemSe 2 konzolemi 250 mm |
|---|---|
| Barva/povrchová úprava | Bílý hliník, RAL 9006, Prášková barva, Prášková barva |
| Rozsah použití | Pro posouvání nahoru a dolů |
| Montáž | Pro montáž na boční panelpři nastavení do nejnižší polohy musí být zdvihací mechanismus zcela posunut zpět do počáteční polohy |
| Materiál | Ocel |
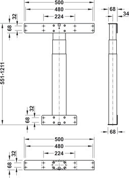
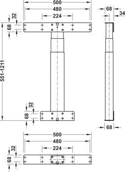
| Šířka | 250,00 mm | 500,00 mm |
| Poznámka k montáži | Flexibilní hadice pro vodovodní přípojky musí zajistit zákazník.Omezení výšky zdvihu programovatelné pomocí ovládacího zařízení s paměťovou funkcí objednejte samostatně. |
| Informace o nosnosti | na zdvihací zařízení s rovnoměrným rozložením zatížení, max. ohýbací moment 150 Nm |
| Hloubka | 68,00 mm |
| Nosnost | 60,00 kg |
| Zdvih | 660,00 mm |
| Rychlost zdvihu | 4,30 cm/s |