





| Verze | pro použití s VN přírubou |
|---|---|
| Barva/povrchová úprava | prázdné |
| Rozsah použití | pro ocelové zárubně s pouzdrem Variant k přivaření VN 7608/120 3D,pro bezfalcové a falcové vnitřní dveře |
| Materiál | Nerez |
| Poznámka k montáži | pro použití s VN přírubou |
| Montáž | Pro použití na DIN levé a DIN pravé straně |
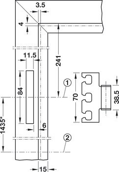
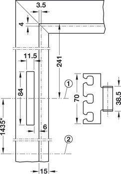
| Průměr patice | 15.00 mm |
| Šířka dveří max. | 1,000.00 mm |
| Typ ložiska | Kluzné ložisko, bezúdržbové |
| Délka patice | 38.50 mm |