




1 na výšku se 2 vedeními
1 kompletní sestava nůžek se dvěma vodicími profily nůžek
3 nábytkové závěsy
1 distanční profil
2 vodicí kolejnice
1 dveřní dorazy s nacvakávacím dveřním dorazem
3 alternativní profily a 3 alternativní kartáče
1 pár krytek
1 tlumení koncové polohy
1 mechanismus dotahu pro dveře
1 mechanismus tlumeného dotahu
Montážní příslušenství




| Verze | Závěsy s mechanismem tlumeného zavírání |
|---|---|
| Rozsah použití | Pro 1 dveře |
| Montáž | Pro použití na levé a pravé straně |
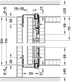
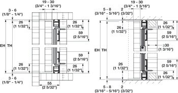
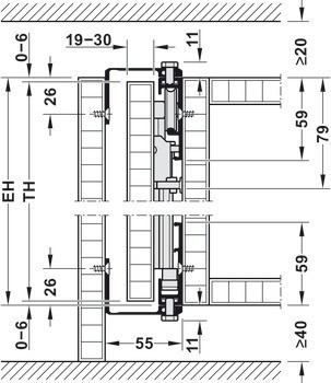
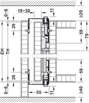
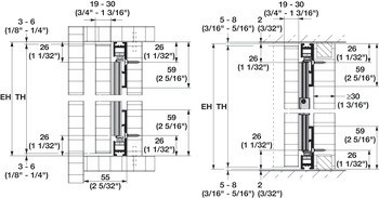
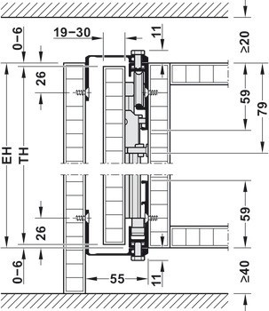
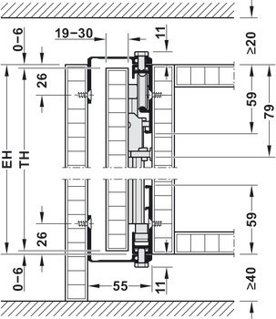
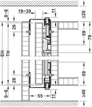
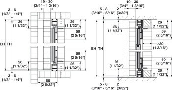
| Pro tloušťku dveří | 19 – 30 mm |
| Pro materiál dveří | dřevo |
| Pro výšku dveří | | 1250 – 1,850 mm | 1851 – 2,300 mm | 1851 – 2,500 mm | 2301 – 2,850 mm |
| Pro šířku dveří | 300 – 900 mm | 300 – 750 mm |
| Pro hmotnost dveří | | 20 – 40 kg | 25 – 50 kg | 10 – 25 kg | 15 – 30 kg |
| Uložení vozíku | Kuličkové ložisko |
| Vlastnosti vozíku | 40/50 kg: 2 kolečka |