






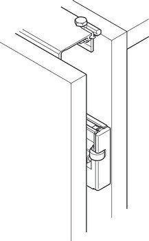
| Verze | | Závěsy s mechanismem tlumeného zavírání |
|---|---|
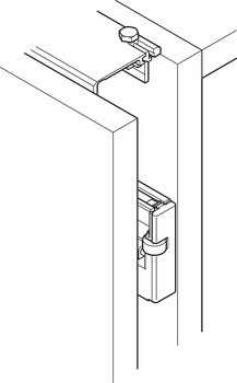
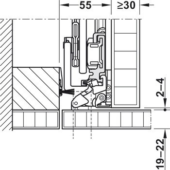
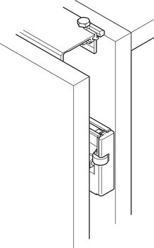
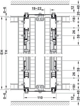
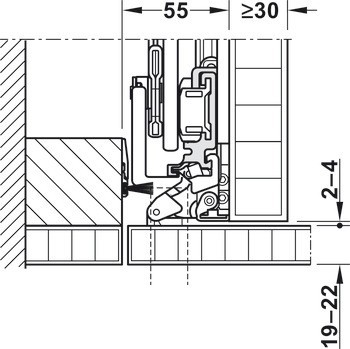
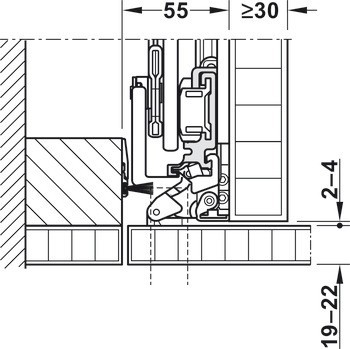
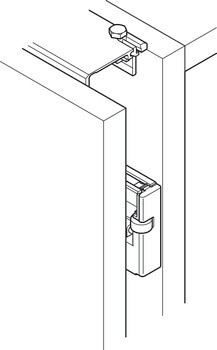
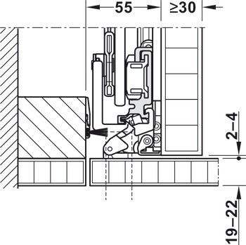
| Pro tloušťku dveří | | 19 – 22 mm |
| Montáž | | Pravé | Levé |
| Pro materiál dveří | | dřevo |
| Pro výšku dveří | | 1950 – 2,300 mm |
| Pro šířku dveří | | 300 – 750 mm |
| Pro hmotnost dveří | | 35 kg |
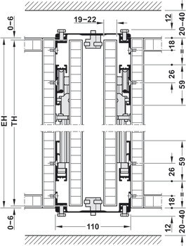
| Uložení vozíku | | Kuličkové ložisko |
| Vlastnosti vozíku | | 2 kolečka |