




Sada závěsného lanka:
2 závěsná lanka s pouzdrem
2 držáky lanka
2 eurošrouby 6,3 x 13,5 mm



| Verze | Průměr závěsné vzpěry: 3 mm | 
|---|---|
| Délka | | 280,00 mm | 350,00 mm | 210.00 mm | 
| Barva/povrchová úprava | Kotva na vzpěře, kotva pro povrchovou montáž, zápustná kotva a hranová matice: nikl, Závěsné lanko: leštěnéDržák závěsného lanka, držák pro povrchovou a zápustnou montáž a matice s krycí hranou: niklPodložka: transparentní | 
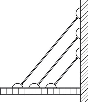
| Rozsah použití | pro dřevěné police od 16 mm a skleněné police 8 mmpro hloubky police až do 300 mm | 
| Montáž | s držákem police montovaným na plochu (pro dřevěné police a skleněné police 8 mm) nebo s držákem k přivrtání | 
| Materiál | Závěsné lanko: nerezpůlkulatý šroub: nerez | 
| Poznámka k montáži | Ideální úhel zavěšení je 45°, možné jsou i úhly 30–50°Dřevěné police od 16 mm: k přišroubování s držáky k přivrtání nebo pro povrchovou montáž8mm skleněné police: montáž do průběžného otvoru s držákem montovaným na plochu/závitovým pouzdrem |