




1 zdvihací systém
1 elektronická jednotka
1 kolébkový spínač
1 montážní návod


| Materiál | Ocelový plech |
|---|---|
| Barva/povrchová úprava | Hluboká černá, RAL 9005, prášková barva |
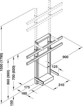
| Rozsah použití | Pro monitory s plochou obrazovkouAž do max. velikosti 900 x 700 mm (Š x V) (zdvih 700 mm) | Pro monitory s plochou obrazovkouAž do max. velikosti 1000 x 820 mm (Š x V) (zdvih 820 mm) |
| Montáž | Kování pro TV a Hi-Fi skříně |
| Výška | | 980,00 mm | 860.00 mm |
| Šířka | 900,00 mm | 900.00 mm |
| Poznámka k montáži | Zdvih musí být z důvodu stability přimontován na zadní panel a spodní spojovací plechy ke korpusu. Deska musí být upevněna k dolní části ramen, na kterých bezpečně spočívá plochá obrazovka. |
| Hloubka | 175,00 mm | 175.00 mm |
| Síťové napětí | 230 V / 50 Hz |
| Nosnost | 80 kg |
| Nosnost max. | 80,00 kg | 80.00 kg |
| Zdvih | | 700.00 mm | 820,00 mm |
| Aplikace | Pro montáž do nábytku|Pro zvedání a zasouvání plochých obrazovek |
| Vlastnosti | Plynule nastavitelný zdvih |
| VESA norma | Univerzální |
| Pro výšku displeje | | ≤700 mm | ≤820 mm |
| Pro šířku displeje | | ≤1,000 mm | ≤900 mm |
| Verze | pevná |
| Pro velikost displeje | Max. 900 x 700 mm (Š x V) | Max. 1000 x 820 mm (Š x V) |