









| Verze | s elektronickou čtecí hlavou |
|---|---|
| Barva/povrchová úprava | PZ-Gehäuse: vernickelt, Lesekopf und Knauf: matt |
| Rozsah použití | pro standardní/FH požárně odolné interiérové nebo exteriérové dveřepro vložení do zadlabacích zámků v souladu s DIN 18251pro tloušťku dveří od 40 do 110 mmProvoz na bateriinevhodné pro použití v korozivním prostředí (chlor, čpavek, vápenná voda) |
| Funkčnost | provoz na baterii, inteligentní knobka nebo oboustranná cylindrická vložka, bezkontaktní aktivace kartou Dialock.Profilová vložka s jednostrannou (vložka s knobkou) nebo oboustrannou (oboustranná cylindrická vložka) čtečkou pro řízení kontroly vstupuakustická odezva při přiložení klíčeOsvětlený kroužek pro indikaci stavu: zelená = odemykání, červená = zamykání, LED nesvítí = pohotovostní režimStandardní nastavení: vnější knobka se aktivuje autorizovanou kartou Dialock a po 10 sekundách se automaticky deaktivuje (variabilní nastavení času)pro servisní personál: indikace stavu programování a když je vyžadována výměna baterie jako akustický signálInfračervené rozhraní pro programovánís hodinami a protokolováním všech procedur |
| Technologie transpondéru | Tag-it™-ISO®|MIFARE® DESFire® EV2|MIFARE Classic® EV1 |
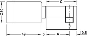
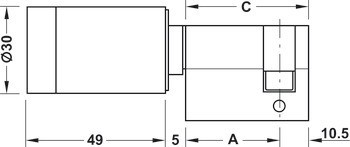
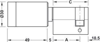
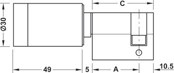
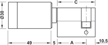
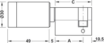
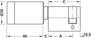
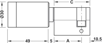
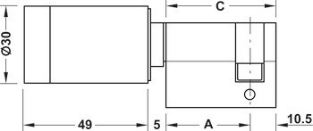
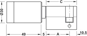
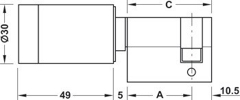
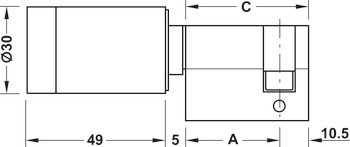
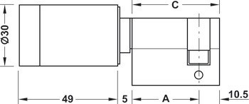
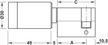
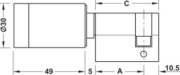
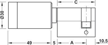
| Délka vložky vně | | 27,50 mm | 37.50 mm | 42.50 mm | 62,50 mm | 32,50 mm | 47,50 mm | 52.50 mm | 57.50 mm |
| Délka vložky uvnitř | | 10,50 mm | 10.50 mm |
| Celková délka vložky | | 38,00 mm | 43,00 mm | 73,00 mm | 58,00 mm | 53.00 mm | 63.00 mm | 48.00 mm | 68.00 mm |