




1 základní zavírač
1 kluzná lišta

| Verze | | S kluznou lištou |
|---|---|
| Barva/povrchová úprava | | Barva stříbra |
| Zařízení pro nastavení | |
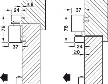
| Montáž | | Pro použití na DIN levé a DIN pravé straně |
| Úhel otevření | | ≤150 ° |
| Pro šířku dveří | | ≤1,100 mm |
| Efekt zavírání | | od 150° |
| Norma | | Certifikováno v souladu s EN 1154:1996/A1:2002 |
| Třída | | 3|8|2 – 4|1|1|3 |
| Pro počet dveří | | 1křídlé dveře |
| Zavírací síla | | 2–4 v souladu s EN 1154 |
| Způsob montáže | | Standardní montáž (montáž dveřního křídla) na straně závěsů, Horní montáž (upevnění na nosník) na straně závěsů |
| Úhel aretace v otevřené poloze | | ≤120 ° |