




1 klopna s tažným lankem s čelním kováním
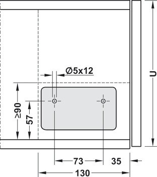
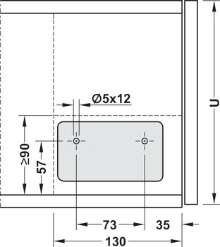
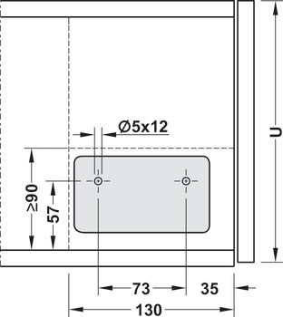
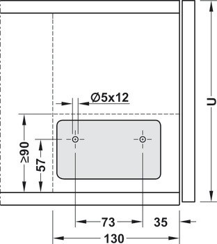
Montážní materiál





| Verze | | Bez mechanismu tlumení | s mechanismem tlumeného zavírání |
|---|---|
| Rozsah použití | Pro malé výklopy ze dřeva o výšce 120 mm až 200 mm |
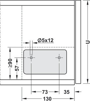
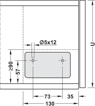
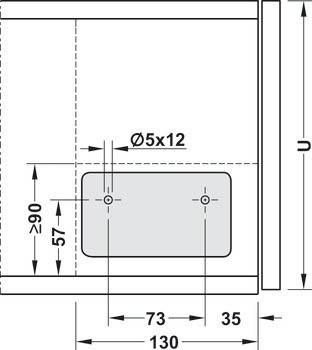
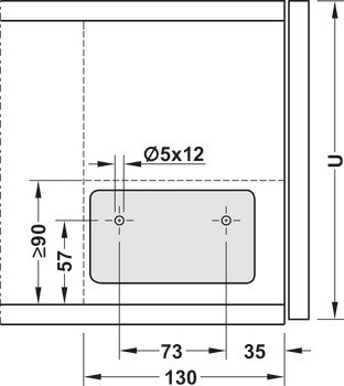
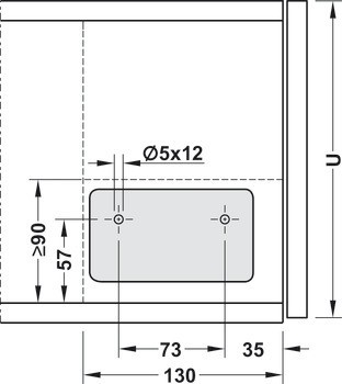
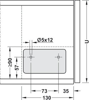
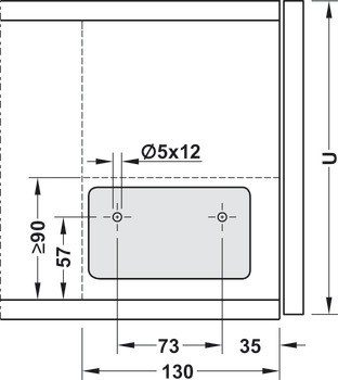
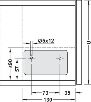
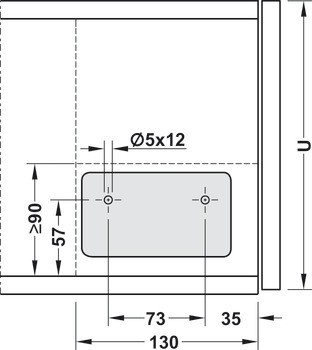
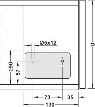
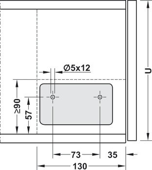
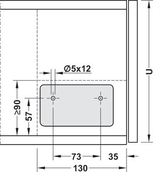
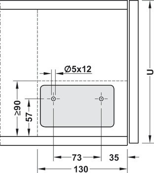
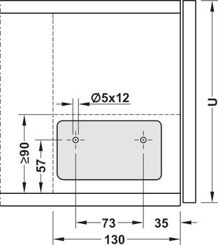
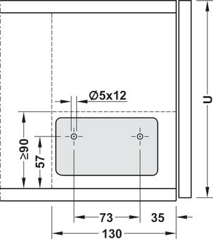
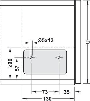
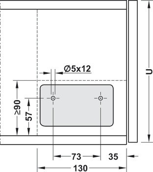
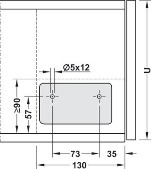
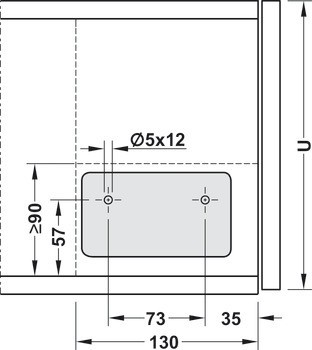
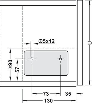
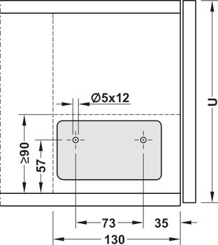
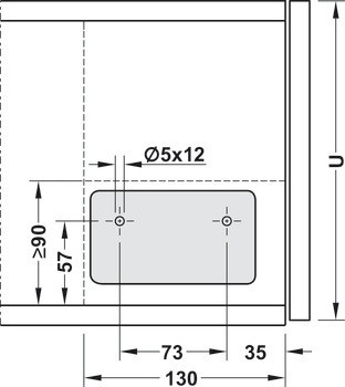
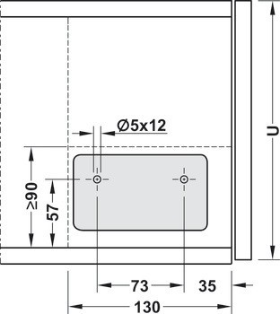
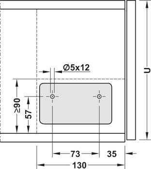
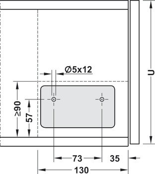
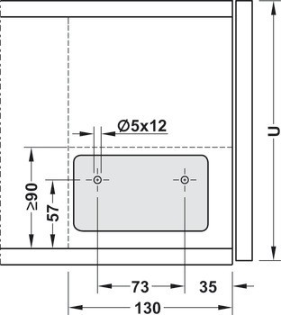
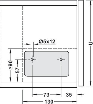
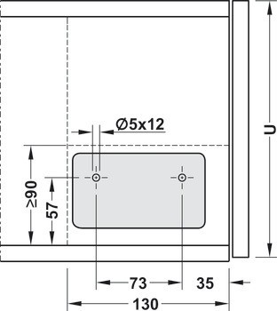
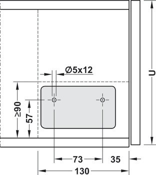
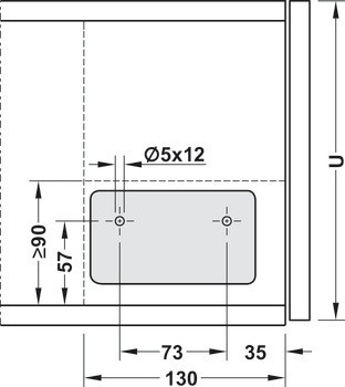
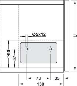
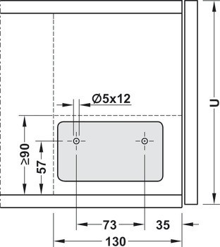
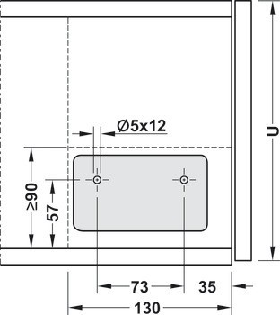
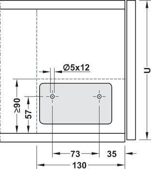
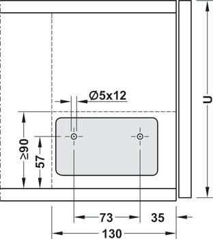
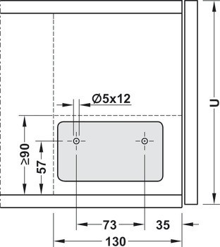
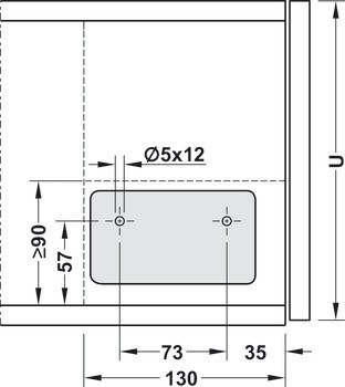
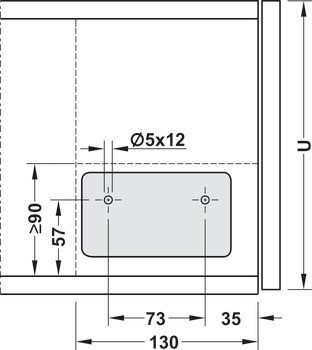
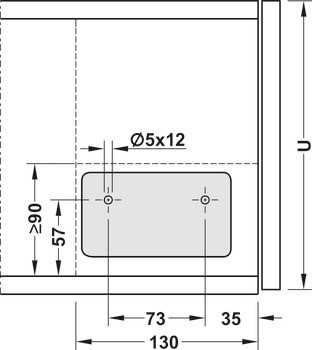
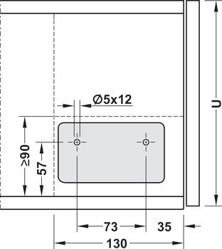
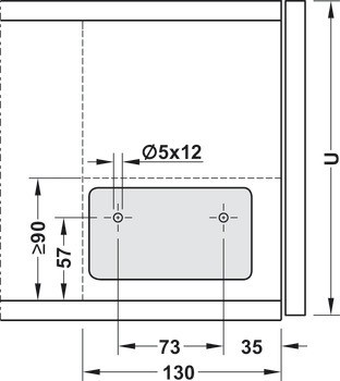
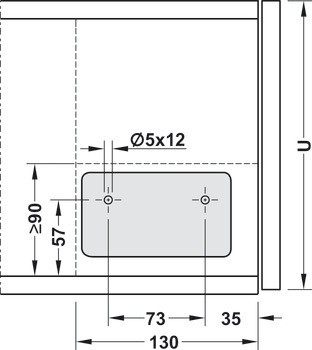
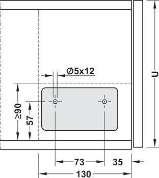
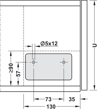
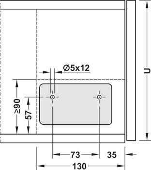
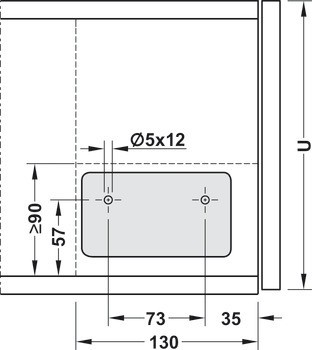
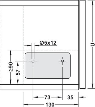
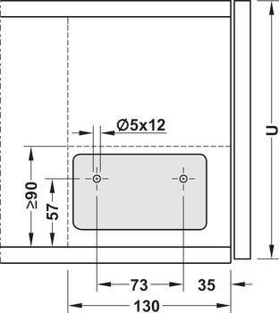
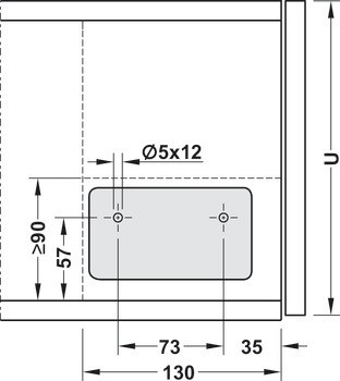
| Montáž | K přišroubování pomocí eurošroubů |
| Materiál | Kování a krytky: plast, ocel a zinková slitina, Čelní kování: zinková slitina |
| Model | | A | B | C |
| Barva krytu | | Bílá | Šedá | černá | bílá | Černá | šedá | Kouřová barva |
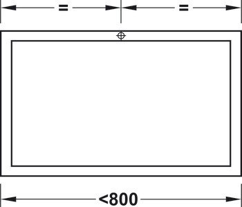
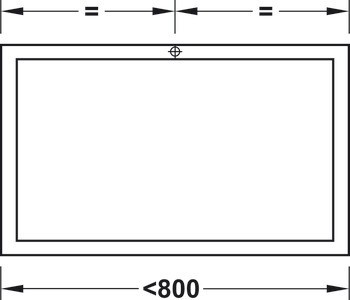
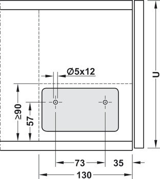
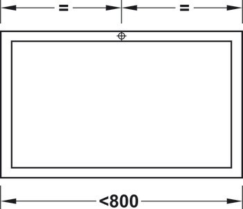
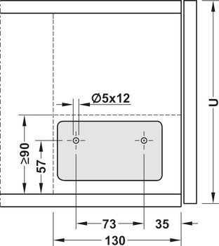
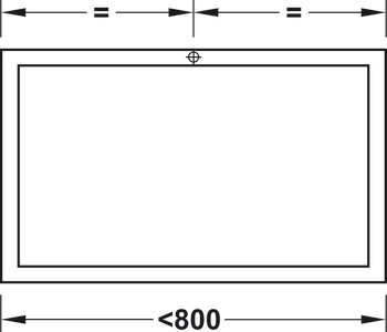
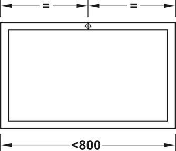
| Pro hmotnost víka | ≤9 kg, zohledněte ukázkové hodnoty z tabulky |
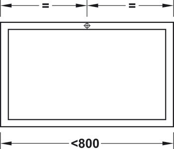
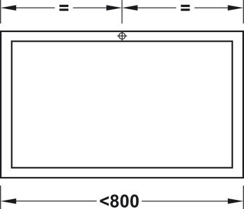
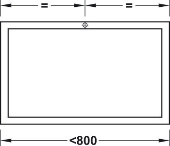
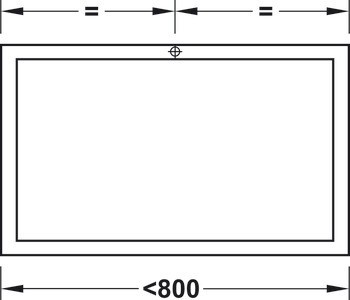
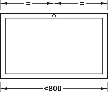
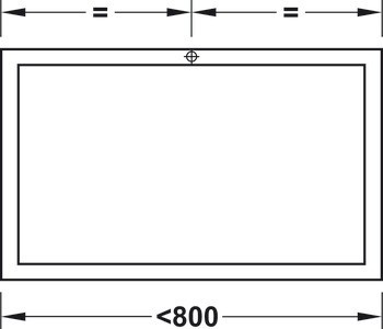
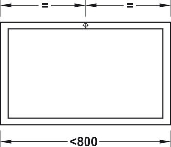
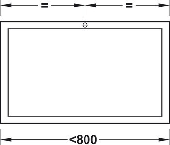
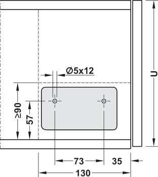
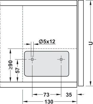
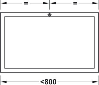
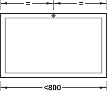
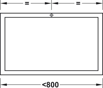
| Pro výšku korpusu | 120–200 mm |
| Materiál víka | Dřevo |
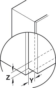
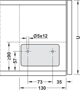
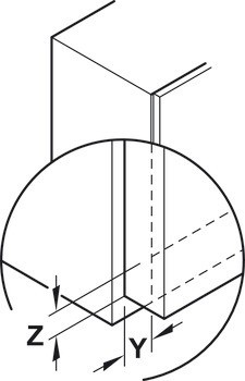
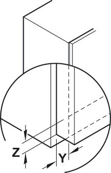
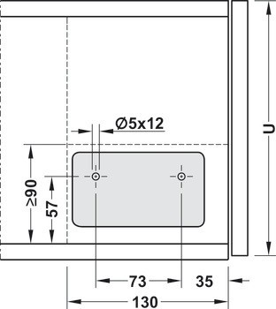
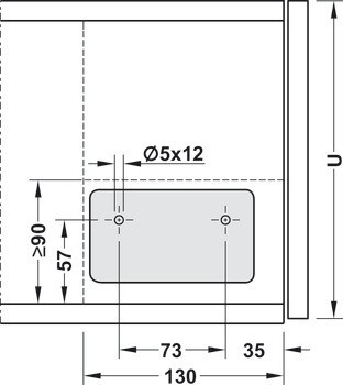
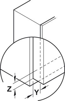
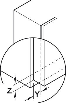
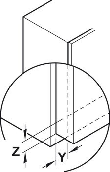
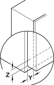
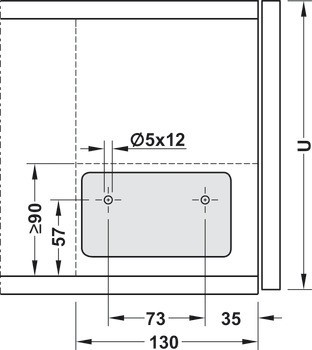
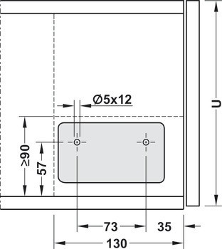
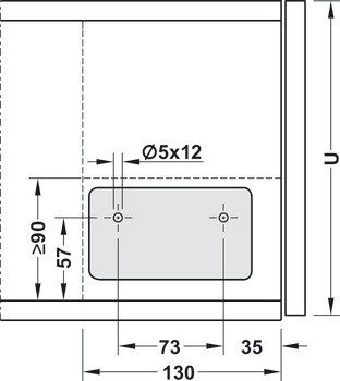
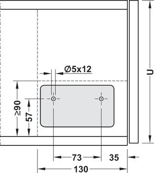
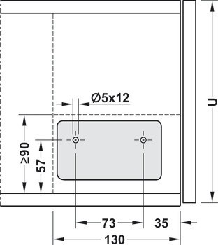
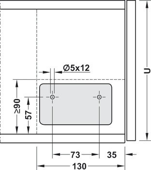
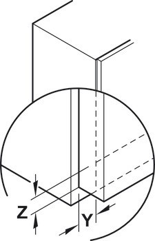
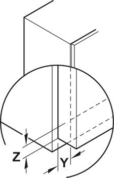
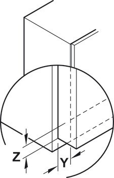
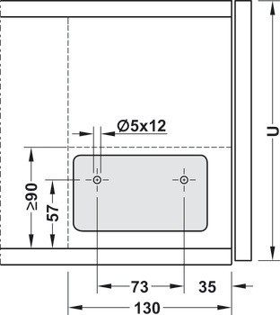
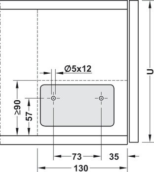
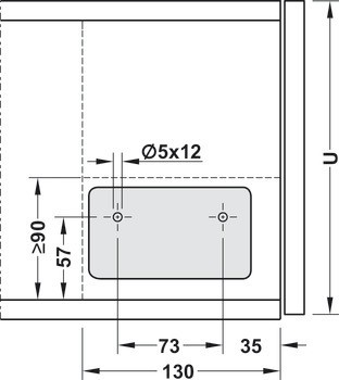
| Pro hloubku korpusu | ≥130 mm |
| Barva/povrchová úprava | Čelní kování: nikl |
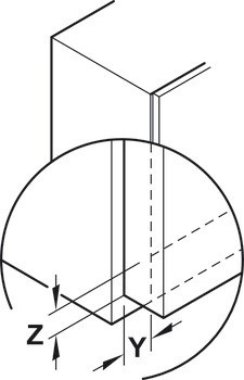
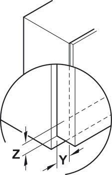
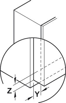
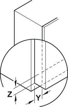
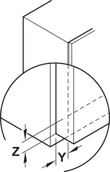
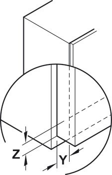
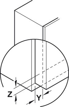
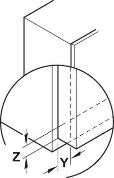
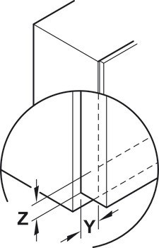
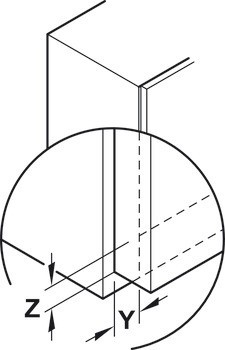
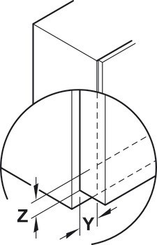
| Montáž | použití na pravé a levé straně |