




Tuto položku již nelze zakoupit
1 základní sada Concepta 35
1 Concepta 25/35 Pull výsuvná sada
1 svislý profil, délka 2474 mm
| Verze | je k dispozici levá a pravá sadaMechanismus tlumeného zavírání integrovaný v pojezdové kolejnici |
|---|---|
| Model | 35 Pull |
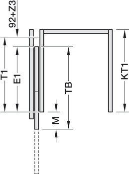
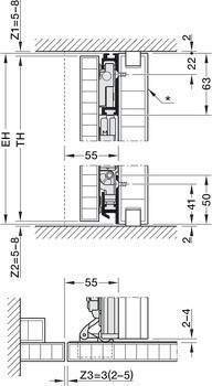
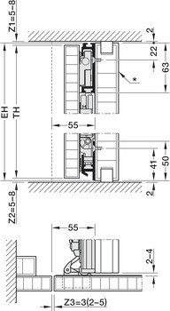
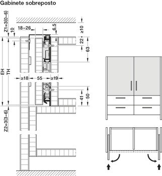
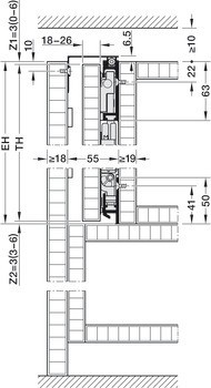
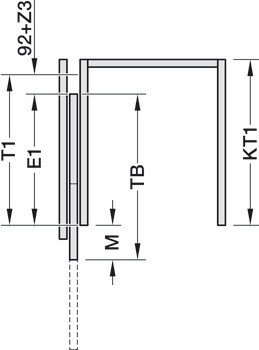
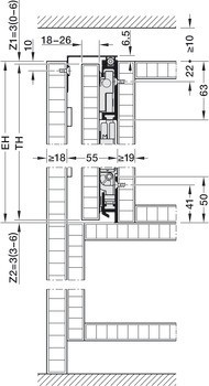
| Pro tloušťku dveří | 18 – 26 mm |
| Montáž | Pravé |
| Pro materiál dveří | dřevo |
| Pro výšku dveří | 1900 – 2,700 mm |
| Pro šířku dveří | 440 – 750 mm |
| Pro hmotnost dveří | 10 – 35 kg |
| Uložení vozíku | Kuličkové ložisko |
| Vlastnosti vozíku | 2 kolečka |
| Poznámka k výšce dveří | ≤25 kg: 1200–2200 mm,≤35 kg: 1900–2700 mm |