




2 vozíky s nosnou přírubou a mechanismem tlumeného dotahu
2 nosné profily včetně krytky
1 podlahové vedení s nulovou tolerancí
2 uvolňovací zařízení s dorazem pro mechanismus tlumeného dotahu

| Rozsah použití | 1křídlé až 2křídlé posuvné dveře |
|---|---|
| Model | 160I |
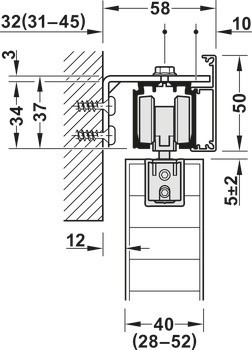
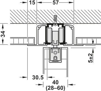
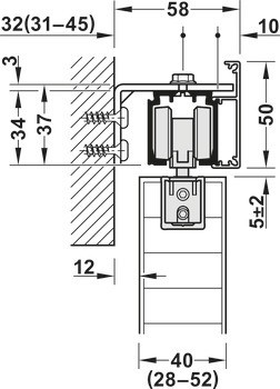
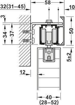
| Zařízení pro nastavení | Height adjustment: -2 – 2 mm |
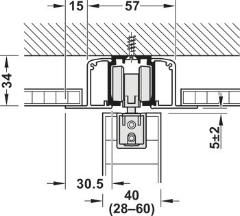
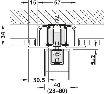
| Pro tloušťku dveří | 28 – 60 mm |
| Pro materiál dveří | dřevo |
| Počet dveří v systému max. | 1 až 2 |
| Mechanismus tlumeného zavírání | s mechanismem tlumeného dotahu na obou stranách |
| Pro šířku dveří | ≥868 mm |
| Pro hmotnost dveří | ≤160 kg |
| Poloha pojezdu | Nahoře |
| Zpracování dveří | S výřezem |
| Montáž | Zavěšení s integrovanou nosnou přírubou |
| Typ montáže | Integrovaná montáž na strop, Montáž na stěnu a montáž na strop |