




4 vozíků
4 dveřní dorazy horní/spodní
4 podlahová vedení pro dveře





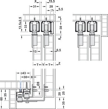
| Zařízení pro nastavení | Height adjustment: -2.5 – 2.5 mm |
|---|---|
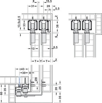
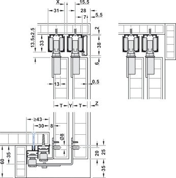
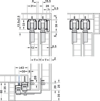
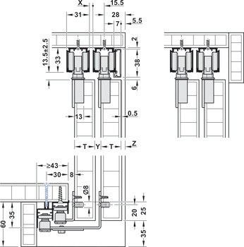
| Pro tloušťku dveří | 19 – 33 mm |
| Pro materiál dveří | dřevo |
| Design skříně | s velkými dveřními křídly |
| Sada | Sada bez kolejnic |
| Počet dveří v systému max. | 2 až 3 |
| Počet dveří | | 3,00 | 2,00 | 2.00 |
| Mechanismus tlumeného zavírání | | s mechanismem tlumeného dotahu na jedné straně | s mechanismem tlumeného dotahu na obou stranách | bez mechanismu tlumeného dotahu |
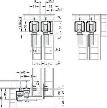
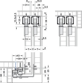
| Nastavení výšky | -2.5 – 2.5 mm |
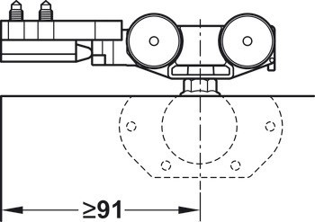
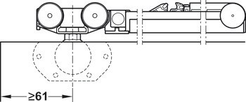
| Pro šířku dveří | ≥600 mm | ≥650 mm |
| Pro hmotnost dveří | ≤80 kg |
| Materiál/Povrchová úprava | Pohon: PlastUpevňovací díl: PlastVedení: OcelKolečka: Plast |
| Montáž | Montáž a demontáž dveřních křídel s namontovaným nebo demontovaným panelem|Vozík a vedení k přišroubování |
| Poloha pojezdu | Nahoře |
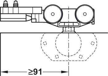
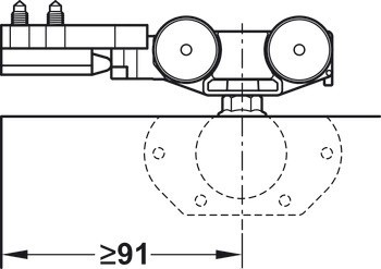
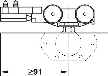
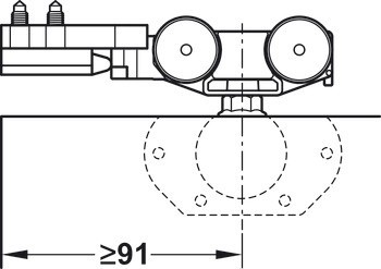
| Počet koleček | 2,00 | 2.00 |
| Uložení vozíku | Kuličkové ložisko |
| Nastavení dveří přes | podpěrný šroub |
| Typ otevírání | lineární |