




2 vozíky
2 vedení
4 dveřní dorazy (2 s nacvakávacím dveřním dorazem, 2 dorazy)





| Verze | | S nacvakávacím dveřním dorazem | s mechanismem tlumeného dotahu na obou stranách, 60 kg | s mechanismem tlumeného dotahu na jedné straně, 60 kg |
|---|---|
| Rozsah použití | | Pro 2 dveře | Pro 3 dveře | Pro 1 dveře |
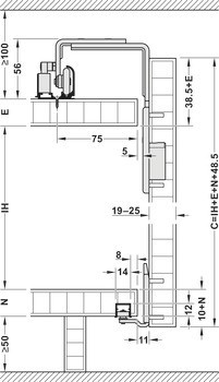
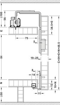
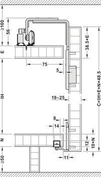
| Poznámka k montáži | vedení a vozík k přišroubování na dveře,Kolejnice k přišroubování do korpusu zvenku,Dvojitá vodicí kolejnice (volitelně) rovněž zevnitř |
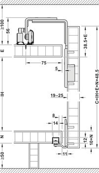
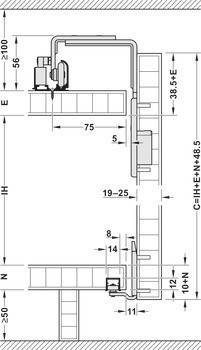
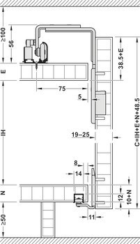
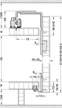
| Zařízení pro nastavení | Height adjustment ±2 mm, Výška ±2 mm na vozíku pomocí nastavovacího kolečka |
| Pro tloušťku dveří | 19 – 25 mm |
| Pro materiál dveří | Dřevo |
| Počet dveří | 3,00 | 1,00 | 2,00 | 1.00 |
| Mechanismus tlumeného zavírání | s mechanismem tlumeného dotahu na jedné straně | s mechanismem tlumeného dotahu na obou stranách | bez mechanismu tlumeného dotahu, s nacvakávacím dveřním dorazem |
| Nastavení výšky | ±2 mm |
| Pro šířku dveří | ≥520 mm | ≥350 mm | ≥820 mm |
| Pro hmotnost dveří | ≤60 kg |
| Dveřní doraz | Horní zacvakávací dveřní doraz nebo mechanismus tlumeného dotahu, pro nasunutí do pojezdové kolejnice |
| Materiál/Povrchová úprava | Tělo: Zinková slitina, Vozík: Ocel, Montážní podložka: Ocel, Vedení: Ocel |
| Poloha pojezdu | Nahoře |
| Počet koleček | 2,00 | 2.00 |
| Uložení vozíku | Kuličkové ložisko |
| Zpracování dveří | S výřezem |
| Nastavení dveří přes | nastavitelné kolečko |
| Vhodné pro montáž vodicí kolejnice | pod základní panel |