




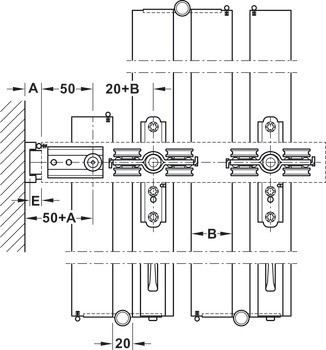
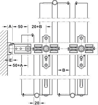
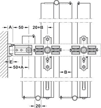
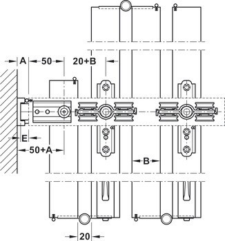
1 vozík, 4 kolečka, s nosnou přírubou
2 otočná ložiska (1 nahoře/dole)
1 vedení
1 středící sada pro dveřní křídlo





| Rozsah použití | | Pro systémy se spodní kolejnicí | Pro systémy bez spodní kolejnice(systémy s rohovým zavěšením s max. 2 dveřmi na obou stranách) |
|---|---|
| Zařízení pro nastavení | Height adjustment ±5 mm, Výška ±5 mm |
| Pro tloušťku dveří | 35 – 60 mm |
| Pro materiál dveří | dřevo |
| Sada | Sada bez kolejnic |
| Pro výšku dveří | ≤3,500 mm |
| Počet dveří v systému max. | >4 |
| Pro šířku dveří | 500 – 1,000 mm |
| Pro hmotnost dveří | ≤100 kg |
| Materiál/Povrchová úprava | Pojezdová kolejnice: HliníkVodicí kolejnice: HliníkVozík: OcelKolečko: Plast, Barva stříbra, elox |
| Vhodné pro | Flexibilní rozdělení místnosti nebo vizuální dělení |
| Typ montáže | Montáž na strop |
| Typ sady | | Základní sada | Doplňková sada | Sada pro otočné dveře pro skládací stěnu | Sada pro otočné dveře |
| Verze | | S vrchním vedením | S otočným ložiskem nahoře a dole | S horním otočným ložiskem a bodovým ložiskem s nastavitelnou patkou dole | S horním a spodním vedením | Bez vedení nahoře a dole |
| Systém vedení | Skryté v kolejnici |
| Pružina | | Středové zavěšení | Rohové zavěšení, Středové zavěšení |
| Šířka systému 1stranná | 6,00 m | 6,0 m |
| Šířka systému 2stranná | 12,00 m | 12,0 m |