




4 vozíky
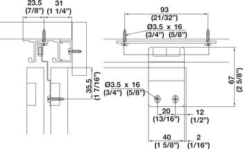
4 dveřních dorazů (2 s nacvakávacím dveřním dorazem/2 dorazy)
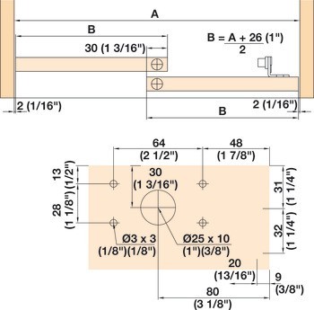
2 vedení
1 vložený doraz
1 montážní materiál



| Rozsah použití | Pro 2 dveře | Pro 3 dveře |
|---|---|
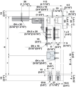
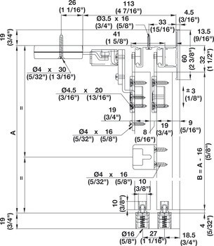
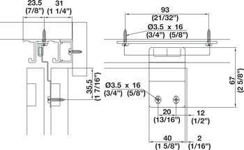
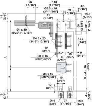
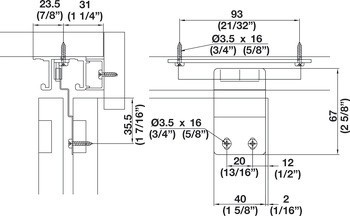
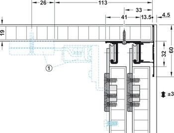
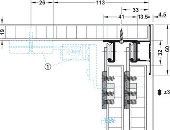
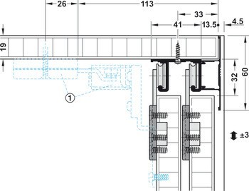
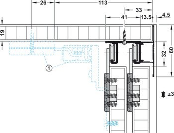
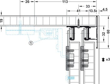
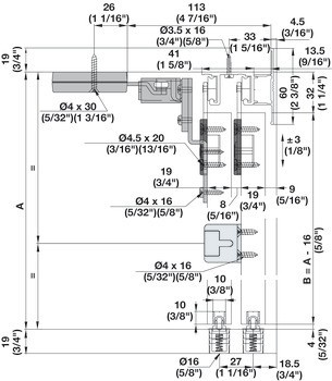
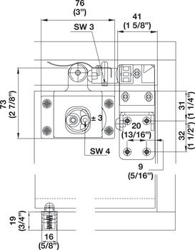
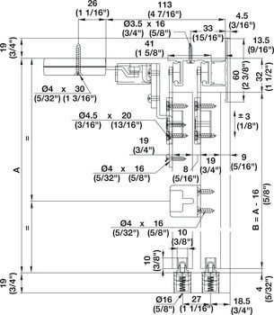
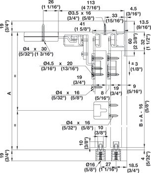
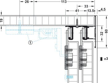
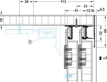
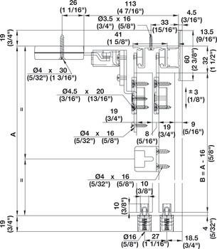
| Zařízení pro nastavení | Height adjustment: -3 – 3 mm, ±3 mm na vozíku pomocí excentrického šroubu |
| Pro tloušťku dveří | 19 mm |
| Sada | Sada bez kolejnic |
| Pro výšku dveří | ≤2,200 mm |
| Počet dveří v systému max. | 2 až 3 |
| Počet dveří | | 3,00 | 2,00 | 2.00 |
| Mechanismus tlumeného zavírání | s nacvakávacím dveřním dorazem |
| Pro šířku dveří | ≤1,200 mm |
| Pro hmotnost dveří | | ≤20 kg | ≤35 kg |
| Materiál/Povrchová úprava | Vozík: OcelVedení: PlastKolečka: PlastOsy: Ocel |
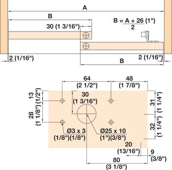
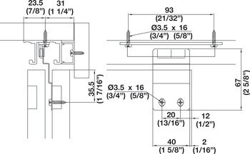
| Montáž | Vedení k nalisování do vrtaného otvoru|Vozík k přišroubování|Bezvůlové podlahové vedení předepnuté pružinou k nalisování |
| Poloha pojezdu | Nahoře |
| Počet koleček | | 1,00 | 2,00 | 2.00 |
| Uložení vozíku | Kuličkové ložisko |
| Nastavení dveří přes | excentrický šroub |
| Typ otevírání | lineární |