




4 vozíky
4 vedení
8 dveřních dorazů s nacvakávacím dveřním dorazem
4 koncovky kolejnice
Montážní materiál




| Verze | S nacvakávacím dveřním dorazem |
|---|---|
| Rozsah použití | | Pro 2 dveře | Pro 3 dveře |
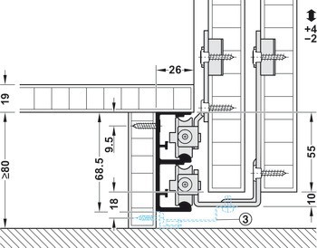
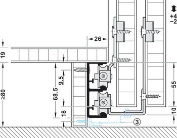
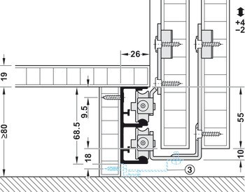
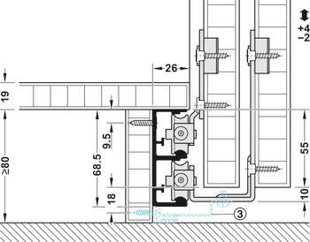
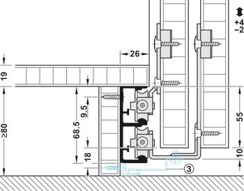
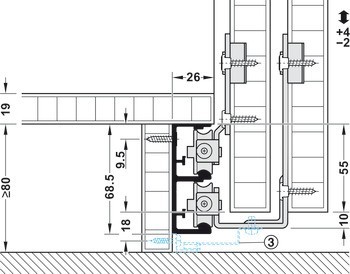
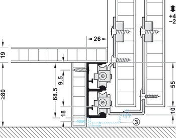
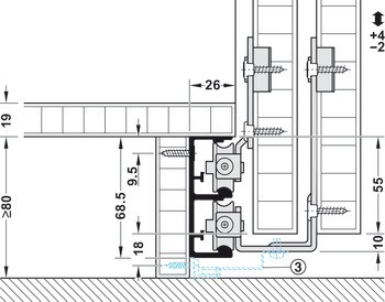
| Zařízení pro nastavení | Height adjustment -2/+4 mm, +4/-2 mm pomocí excentrického šroubu na vozíku |
| Pro tloušťku dveří | 25 mm | 19 mm |
| Pro výšku dveří | ≤2400 mm |
| Mechanismus tlumeného zavírání | bez mechanismu tlumeného dotahu, s nacvakávacím dveřním dorazem |
| Nastavení výšky | -2/+4 mm |
| Pro šířku dveří | ≤1400 mm |
| Pro hmotnost dveří | ≤50 kg |
| Dveřní doraz | Horní nacvakávací dveřní doraz a spodní mechanismus tlumeného dotahu |
| Materiál/Povrchová úprava | Vozík: Ocel, Vedení: Ocel, Kolečko: Plast |
| Montáž | Vozík a vedení k přišroubování|Beznářaďová montáž a demontáž dveřních křídel |
| Poloha pojezdu | Dole |
| Počet koleček | 1.00 |
| Uložení vozíku | Kuličkové ložisko |
| Nastavení dveří přes | excentrický šroub |