




4 vozíky
4 vedení
8 dveřních dorazů (6 s nacvakávacím dveřním dorazem/2 dorazy)
Montážní materiál




| Verze | S nacvakávacím dveřním dorazem |
|---|---|
| Rozsah použití | | Pro 2 dveře | Pro 3 dveře |
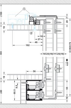
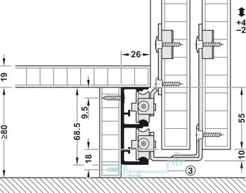
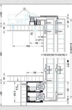
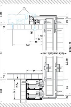
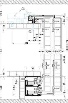
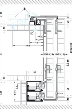
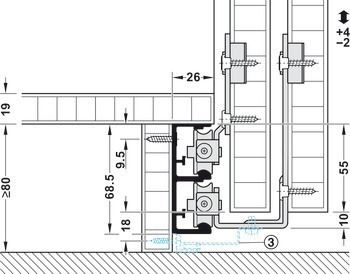
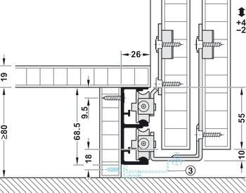
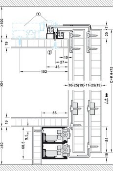
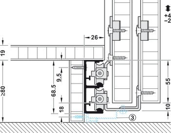
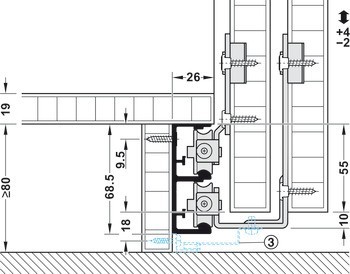
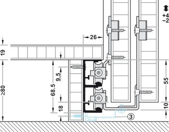
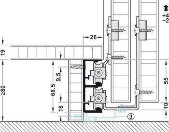
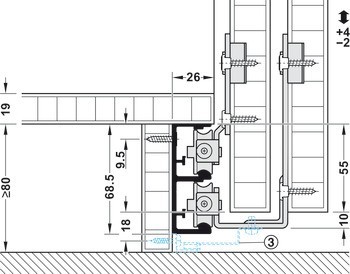
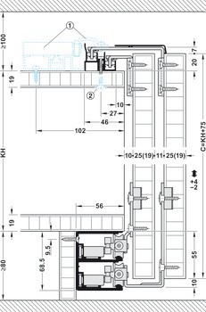
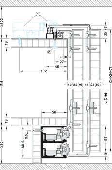
| Zařízení pro nastavení | Výška +4/-2 mm na vozíku pomocí excentrického šroubu |
| Pro tloušťku dveří | 25 mm | 19 mm |
| Pro výšku dveří | ≤2400 mm |
| Mechanismus tlumeného zavírání | bez mechanismu tlumeného dotahu, s nacvakávacím dveřním dorazem |
| Pro šířku dveří | ≤1400 mm |
| Pro hmotnost dveří | ≤50 kg |
| Dveřní doraz | Spodní nacvakávací dveřní doraz nebo mechanismus tlumeného dotahu, pro nasunutí do pojezdové kolejnice |
| Materiál/Povrchová úprava | Vozík: Ocel, Vedení: Ocel, Kolečka: Plast |
| Montáž | Vozík a vedení k přišroubování|Beznářaďová montáž a demontáž dveřních křídel |
| Poloha pojezdu | Dole |
| Počet koleček | 1,00 | 1.00 |
| Uložení vozíku | Kuličkové ložisko |