




4 vozíky
4 vedení
8 dorazy dveřního křídla s nacvakávacím dveřním dorazem
4 koncovky kolejnice
Montážní materiál


| Verze | S nacvakávacím dveřním dorazem |
|---|---|
| Rozsah použití | | Pro 2 dveře | Pro 3 dveře |
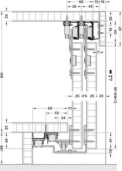
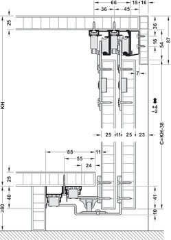
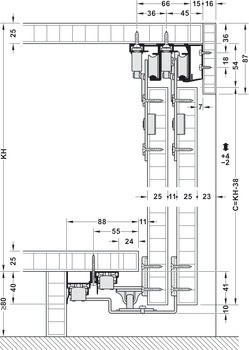
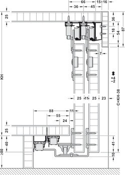
| Zařízení pro nastavení | Height adjustment: -2 – 4 mm, +4/-2 mm pomocí excentrického šroubu na vozíku |
| Pro tloušťku dveří | 25 mm |
| Pro materiál dveří | dřevo |
| Pro výšku dveří | ≤2,600 mm |
| Počet dveří v systému max. | 2 až 3 |
| Počet dveří | 3,00 | 2,00 |
| Mechanismus tlumeného zavírání | s nacvakávacím dveřním dorazem |
| Nastavení výšky | -2 – 4 mm |
| Pro šířku dveří | ≤1,400 mm |
| Pro hmotnost dveří | ≤65 kg |
| Dveřní doraz | Horní nacvakávací dveřní doraz a mechanismus tlumeného dotahu |
| Materiál/Povrchová úprava | Vozík: OcelVedení: Ocel |
| Montáž | Vozík a vedení k přišroubování|Beznářaďová montáž a demontáž dveřních křídel |
| Poloha pojezdu | Nahoře |
| Počet koleček | 1,00 |
| Uložení vozíku | Kuličkové ložisko |
| Typ otevírání | lineární |