




4 vozíky
8 dveřních dorazů (2 s nacvakávacím dveřním dorazem/6 dorazy)
4 vedení
6 panelů k nacvaknutí


| Verze | S nacvakávacím dveřním dorazem |
|---|---|
| Rozsah použití | | Pro 2 dveře | Pro 3 dveře |
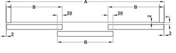
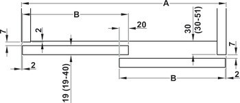
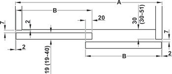
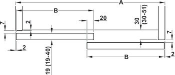
| Poznámka k montáži | před instalací dvojité horní vodicí kolejnice: vložte horní dveřní dorazy |
| Zařízení pro nastavení | výškové nastavení +4/–2 mm na vozíku pomocí excentrického šroubu |
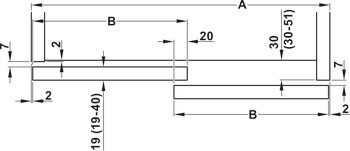
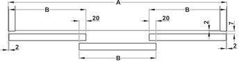
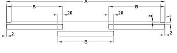
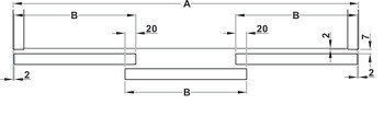
| Pro tloušťku dveří | 19 – 40 mm |
| Pro výšku dveří | ≤2800 mm |
| Počet dveří | | 3,00 | 2.00 |
| Mechanismus tlumeného zavírání | bez mechanismu tlumeného dotahu, s nacvakávacím dveřním dorazem |
| Pro šířku dveří | ≤1600 mm |
| Pro hmotnost dveří | ≤80 kg |
| Dveřní doraz | Horní nacvakávací dveřní doraz nebo mechanismus tlumeného dotahu, pro nasunutí do pojezdové kolejnice |
| Materiál/Povrchová úprava | Vozík: Ocel, Vedení: Hliník |
| Montáž | Vozík a vedení k přišroubování|Beznářaďová montáž a demontáž dveřních křídel |
| Poloha pojezdu | Nahoře |
| Počet koleček | 1,00 | 1.00 |
| Uložení vozíku | Kuličkové ložisko |
| Zpracování dveří | k přišroubování |