




2 vozíky
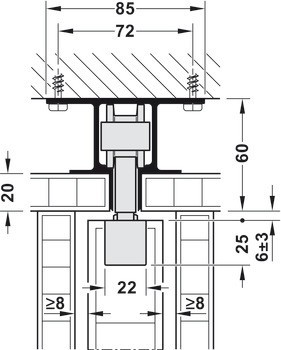
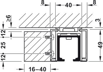
1 nosný profil se závěsnou přírubou vozíku do kapsy
1 nosný profil se závěsnou přírubou vozíku
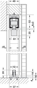
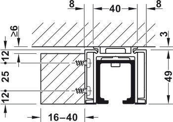
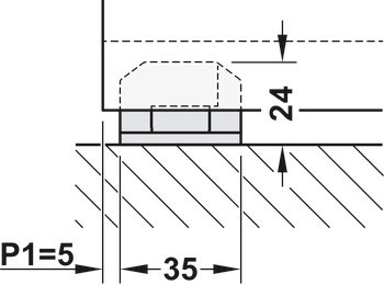
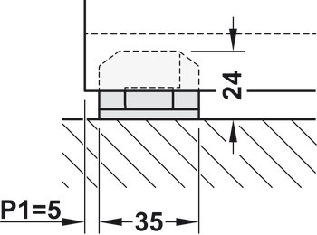
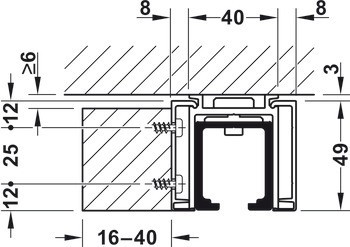
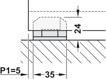
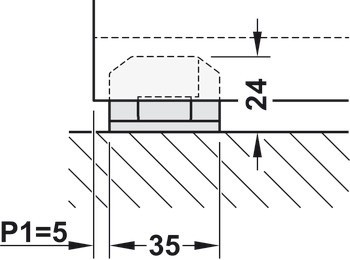
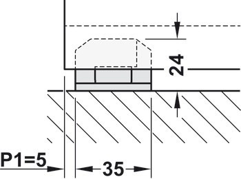
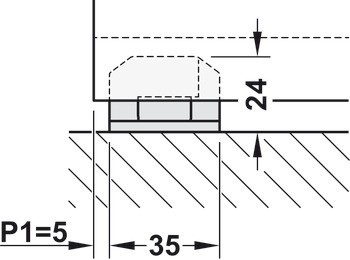
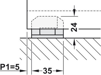
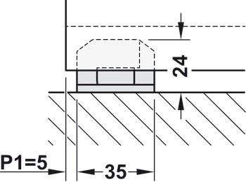
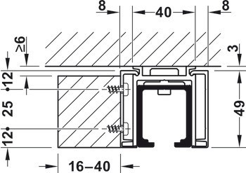
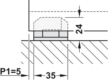
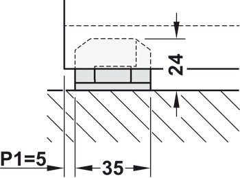
1 rovné prahové podlahové vedení 35 mm
2 SoftStop s přídržnou pružinou
1 montážní klíč





| Verze | s dlouhým závěsným šroubem (+20 mm) |
|---|---|
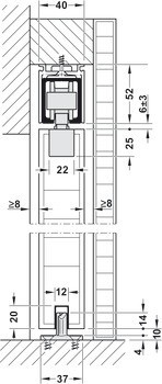
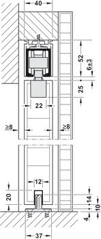
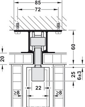
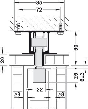
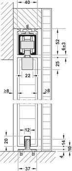
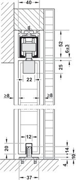
| Rozsah použití | Pro 1křídlé posuvné dveře pro montáž kapsy ve stěně |
| Model | 100 B Pocket |
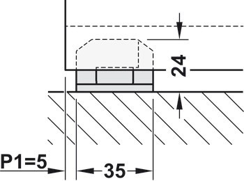
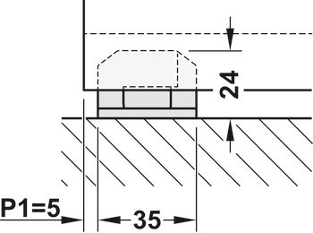
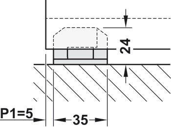
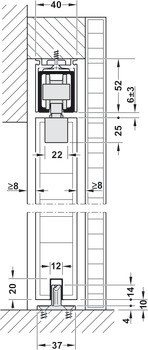
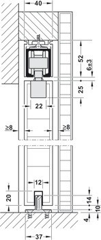
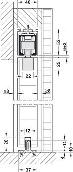
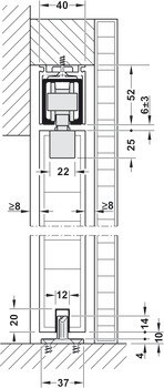
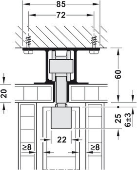
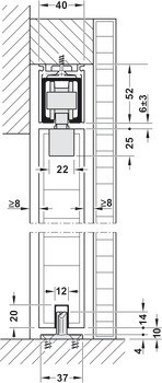
| Zařízení pro nastavení | Height adjustment ±3 mm |
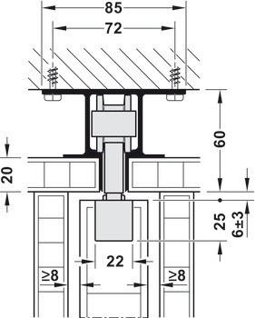
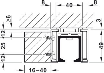
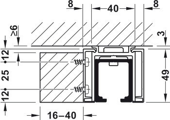
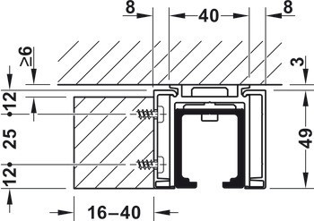
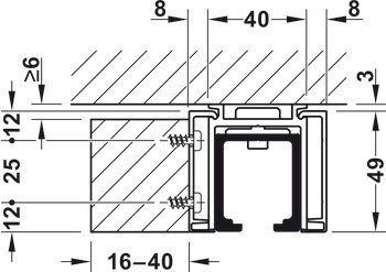
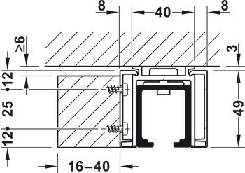
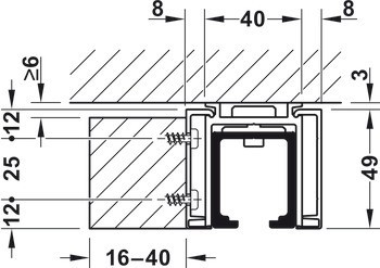
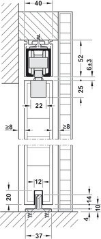
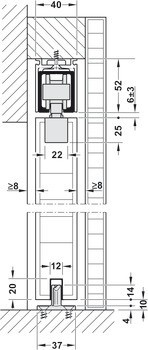
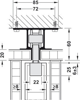
| Pro tloušťku dveří | 35 – 80 mm |
| Funkčnost | možnost následné demontáže pojezdové kolejnice bez otvoru ve stěně, vozík a mechanismus tlumeného dotahu jsou vyjímatelné, poloha dorazu nastavitelná v kapse ve stěně |
| Pro materiál dveří | dřevo |
| Pro výšku dveří | ≤4,000 mm |
| Počet dveří v systému max. | 1 až 2 |
| Počet dveří | 1,00 | 1.00 | 1,0 |
| Mechanismus tlumeného zavírání | | s mechanismem tlumeného dotahu na obou stranách | s mechanismem tlumeného dotahu na jedné straně, s pružinovým dorazem na jedné straně | s mechanismem tlumeného dotahu na jedné straně, s tlumičem rázů a přídržnou pružinou na jedné straně | bez mechanismu tlumeného dotahu, s tlumičem rázů a přídržnou pružinou na jedné straně | bez mechanismu tlumeného dotahu, s pružinovým dorazem na jedné straně, s tlumičem rázů a přídržnou pružinou na jedné straně |
| Pro šířku dveří | | 700 – 1,500 mm | 650 – 1,500 mm |
| Pro hmotnost dveří | ≤100 kg |
| Poloha pojezdu | Nahoře |
| Zpracování dveří | S výřezem |
| Vhodné pro | Minimální montážní výška|Řešení kapsy ve stěně |
| Montáž | Zavěšení se zapuštěným podpěrným profilem a integrovanou závěsnou přírubou |
| Typ montáže | Montáž na strop, Montáž na stěnu, Integrovaná montáž na strop, Řešení kapsy ve stěně |