




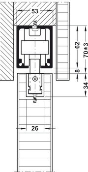
2 vozíky
2 nosné profily se závěsnou přírubou vozíku, M14
2 krytek pro nosný profil
1 dorazy kolejnice s přídržnou pružinou
1 doraz na stěnu
1 rovné prahové podlahové vedení


| Verze | | s 1 dorazem kolejnice/1 dorazem na stěnu | se 2 dorazy kolejnice |
|---|---|
| Rozsah použití | | Pro 1 dveře |
| Model | | 160 B |
| Zařízení pro nastavení | | Doraz kolejnice s nastavitelnou přídržnou pružinou |
| Pro tloušťku dveří | | 35 – 80 mm |
| Pro materiál dveří | | dřevo |
| Pro výšku dveří | | ≤4,000 mm |
| Počet dveří v systému max. | | 1 až 2 |
| Počet dveří | | 1,00 | 1.00 |
| Pro šířku dveří | | ≤3,000 mm |
| Pro hmotnost dveří | | ≤160 kg |
| Poloha pojezdu | | Nahoře |
| Zpracování dveří | | S výřezem |
| Vhodné pro | | Minimální montážní výška |
| Montáž | | Zavěšení se zapuštěným podpěrným profilem |
| Typ montáže | | Montáž na strop, Montáž na stěnu |
| Klasifikace v souladu s EN 1527 | | -|6|3|-|1|0|-|1|3 |
| Norma | | Certifikováno v souladu s EN 1527:2013 |