




1 sada Porta 60 HM
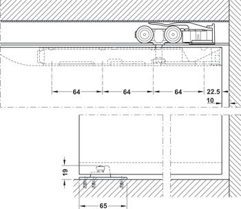
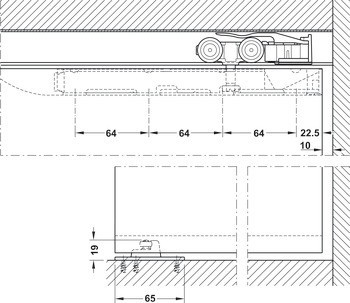
1 pojezdová kolejnice 2000 mm


| Rozsah použití | | pro 1křídlé a 2křídlé posuvné dveře |
|---|---|
| Model | | 60 HM | 100 HM |
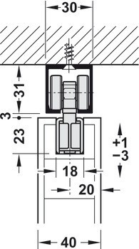
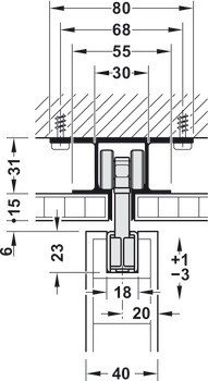
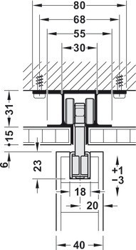
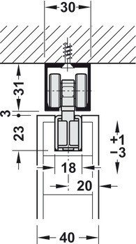
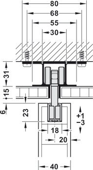
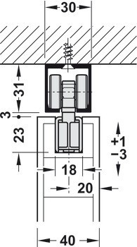
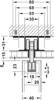
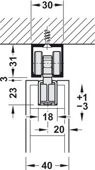
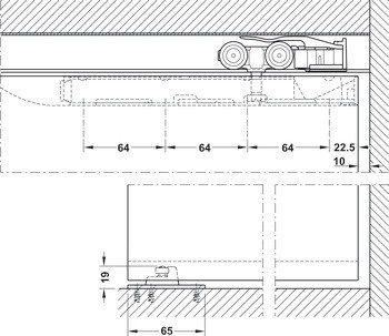
| Zařízení pro nastavení | | Height adjustment: -3 – 1 mm, Výška +1/-3 mm |
| Pro tloušťku dveří | | 30 – 80 mm |
| Pro materiál dveří | | dřevo |
| Pro výšku dveří | | ≤2,700 mm |
| Počet dveří v systému max. | | 1 až 2 |
| Počet dveří | | 1,00 |
| Mechanismus tlumeného zavírání | | s mechanismem tlumeného zavírání (volitelně) |
| Pro šířku dveří | | ≤1,600 mm |
| Pro hmotnost dveří | | ≤60 kg | ≤100 kg |
| Materiál/Povrchová úprava | | Pojezdová kolejnice: Hliník, prázdné | Pojezdová kolejnice: Hliník, Barva stříbra, elox |
| Poloha pojezdu | | Nahoře |
| Zpracování dveří | | S výřezem |
| Vhodné pro | | Minimální montážní výška |
| Typ montáže | | Montáž na strop, Montáž na stěnu, Integrovaná montáž na strop |
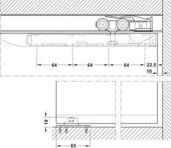
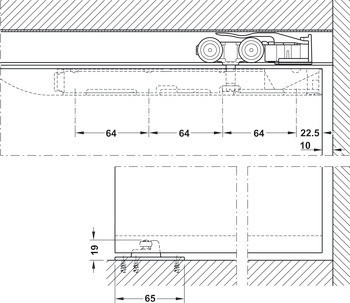
| Délka pojezdové kolejnice | | 2.000,00 mm |