




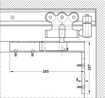
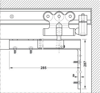
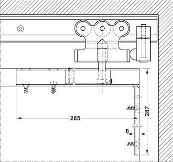
2 vozíky
2 závěsné úhelníky s nosnou přírubou vozíku a závěsným šroubem, M12
2 pružinové dorazy pro zápustnou montáž v dveřním křídle
1 podlahové vedení

| Rozsah použití | Pro 1křídlé a 2křídlé posuvné dveřepro požárně odolné posuvné dveře |
|---|---|
| Model | 500 A |
| Zařízení pro nastavení | Height adjustment: -8 – 12 mm, Výška +12/-8 mm |
| Pro materiál dveří | dřevo |
| Počet dveří v systému max. | 1 až 2 |
| Počet dveří | 1,00 |
| Pro hmotnost dveří | ≤500 kg |
| Poloha pojezdu | Nahoře |
| Zpracování dveří | S výřezem |
| Vhodné pro | Protipožární posuvné dveře |
| Montáž | Zavěšení se zapuštěným závěsným úhelníkem |
| Typ montáže | Montáž na strop, Montáž na stěnu |