




2 vozíky (2 kolečka) s nosným profilem, závěsnou přírubou vozíku a dlouhým závěsným šroubem M10 (+20 mm)
1 dorazy kolejnice s přídržnou pružinou
1 doraz na stěnu
1 podlahové vedení s nulovou tolerancí
1 montážní klíč pro závěsnou přírubu vozíku




| Verze | | s dorazem kolejnice na jedné straně, s dorazem na stěnu na jedné straně | s dlouhým závěsným šroubem (+20 mm) | se SoftStop na jedné straně | s 1 pružinovým dorazem |
|---|---|
| Rozsah použití | Pro 1křídlé a 2křídlé posuvné dveře |
| Poznámka k montáži | Následná demontáž pojezdové kolejnice je možná bez otevření stěnyVozík a mechanismus tlumeného dotahu lze demontovatPoloha dorazu v kapse ve stěně je seřiditelná |
| Model | 80 B Pocket |
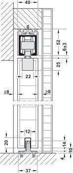
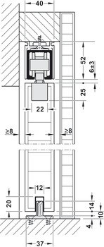
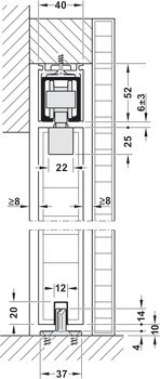
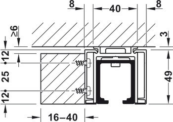
| Zařízení pro nastavení | | Height adjustment ±3 mm, Nastavitelná výška dveří +3 mm, s integrovanou ochranou proti překroucení, vodorovná nastavitelná vzdálenost v podélném směru v bajonetovém držáku ±8 mm |
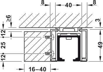
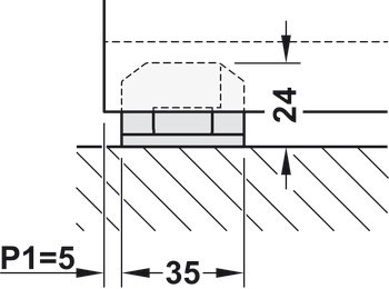
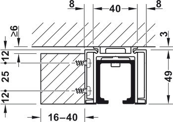
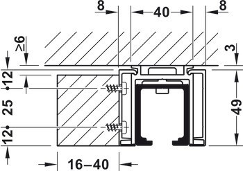
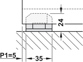
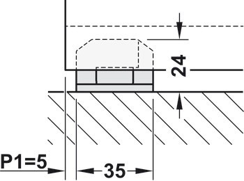
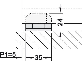
| Pro tloušťku dveří | | 35 – 80 mm |
| Funkčnost | Následná demontáž pojezdové kolejnice bez otevření stěny je možná, vozík a mechanismus tlumeného dotahu lze demontovat, polohu dorazu lze znovu nastavit v kapse ve stěně |
| Pro materiál dveří | Dřevo |
| Pro výšku dveří | ≤4000 mm |
| Počet dveří v systému max. | 1 |
| Počet dveří | 1,00 |
| Mechanismus tlumeného zavírání | | s mechanismem tlumeného dotahu na jedné straně, s pružinovým dorazem na jedné straně | bez mechanismu tlumeného dotahu, s dorazem kolejnice na jedné straně, s dorazem na stěnu na jedné straně | s mechanismem tlumeného dotahu na jedné straně, s tlumičem rázů a přídržnou pružinou na jedné straně |
| Pro šířku dveří | | ≤1250 mm |
| Pro hmotnost dveří | | ≤80 kg |
| Poloha pojezdu | Nahoře |
| Zpracování dveří | S výřezem |
| Vhodné pro | Řešení kapsy ve stěně |
| Montáž | Zavěšení se zapuštěným podpěrným profilem a integrovanou závěsnou přírubou |
| Typ montáže | Montáž na strop, Integrovaná montáž na strop, Řešení kapsy ve stěně |
| Klasifikace v souladu s EN 1527 | | -|6|2|0|-|0|-|1|3 | -|6|2|-|1|0|-|1|3 |
| Norma | | Certifikováno v souladu s EN 1527:2013 | Certifikováno v souladu s EN 1527:1998 |