




1 vozík, horní, s mechanismem tlumeného zavírání
1 vozík, spodní
1 doraz, horní
1 doraz, spodní




| Verze | Pro korpus se 2 dveřmi | Pro korpus se 3 dveřmi |
|---|---|
| Rozsah použití | | Pro skříně se 2 dřevěnými (model 60A) nebo hliníkovými posuvnými dveřmi (model 60B),Pro 2 symetrické dveře nebo pro jedny dveře a například zásuvky | Pro skříně se 3 dřevěnými (model 60A) nebo hliníkovými posuvnými dveřmi (model 60B), |
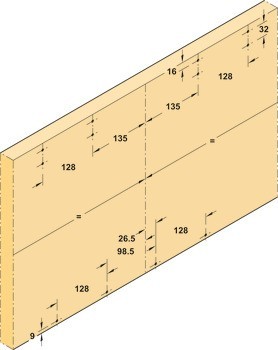
| Poznámka k montáži | Pro zpracování pravého dveřního křídla použijte zrcadlově převrácený vzor vrtání. |
| Zařízení pro nastavení | Height adjustment -4/+6 mm, Svisle -4 až +6 mm |
| Pro tloušťku dveří | ≥16 mm |
| Pro materiál dveří | Dřevo, Hliníkový rámeček |
| Design skříně | například se 2 symetrickými dveřními křídly nebo pro jedny jednoduché dveře a zásuvky |
| Sada | Sada bez kolejnic |
| Pro výšku dveří | ≤3000 mm |
| Poznámka ke hmotnosti dveří | pro korpus se 2 dveřmi: ≤60 kg, pro korpus se 3 dveřmi: vnější dveřní křídlo: 45 kg, středové dveřní křídlo: 100 kg |
| Počet dveří | |
| Směr otevírání | | Pravé | Levé |
| Mechanismus tlumeného zavírání | s mechanismem tlumeného zavírání |
| Tloušťka dveří max. včetně úchytky | 43,00 mm |
| Nastavení výšky | -4/+6 mm |
| Pro šířku dveří | 890 – 1800 mm | 1300 – 1800 mm |
| Pro hmotnost dveří | 5 – 60 kg | 5 – 45 kg |
| Elektrický pohon | volitelně |
| Poznámka k šířce dveří | pro korpus se 2 dveřmi: 890–1800 mm,pro korpus se 3 dveřmi: 1300–1800 mm |