






| Barva/povrchová úprava | | Matná | Barva stříbra, Elox, Barva stříbra, elox |
|---|---|
| Rozsah použití | pro dřevěné zárubně,pro bezfalcové dřevěné vnitřní dveře |
| Materiál | | Nerez | Hliník |
| Montáž | Pro použití na DIN levé a DIN pravé straně |
| Úhel otevření | 180.00 ° |
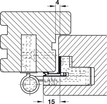
| Tloušťka příruby | | 4.00 mm | 3.00 mm |
| Průměr patice | | 16.00 mm | 18.00 mm |
| Tloušťka dveří | | 30 – 40 mm | 28 – 38 mm |
| Max. hmotnost dveří pro 2 závěsy | 29.00 kg |
| Max. hmotnost dveří pro 3 závěsy | 58.00 kg |
| Kyvné | oboustranný |
| Türflügelbreite | ≤800 mm |