









| Barva/povrchová úprava | Bílá, prášková barva | Šedá, prášková barva |
|---|---|
| Rozsah použití | Pro velké korpusy a spojovací dveře |
| Materiál | Hliník |
| Model | MotionV1 | MotionV2 | MotionV3 |
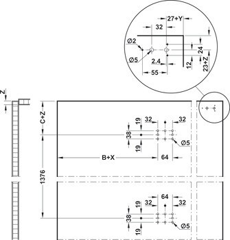
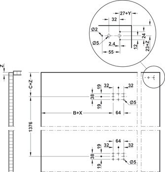
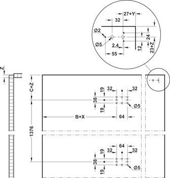
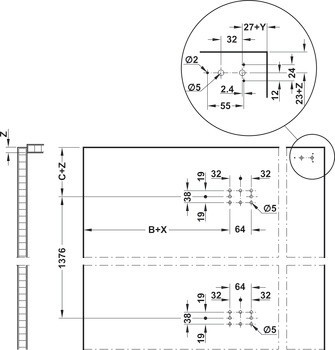
| Hmotnost dveří max. | | 50,00 kg | 50.00 kg | 40,00 kg | 40.0 kg |
| Světlá šířka korpusu | | 780–880 mm | 880–980 mm | 980–1,180 mm |
| Výška dveří | V závislosti na hmotnosti, 1600 mm až 2600 mm |