




1 ActiveStop systém tlumeného zavírání pro dveře
1 kluzná lišta s kluzným prvkem a koncovým dorazem
1 spojovací rameno
1 univerzální blokovač střelkové závory dveří
Montážní materiál

| Barva/povrchová úprava | | Barva stříbra |
|---|---|
| Rozsah použití | | Pro bezfalcové nebo falcové dřevěné vnitřní dveře, pro skrytou montáž do dveřního křídla |
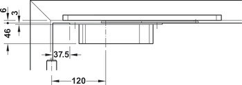
| Pro tloušťku dveří | | ≥38 mm |
| Model | | ActiveStop |
| Zařízení pro nastavení | |
| Princip funkce | | Směr zavírání: tlumené samozavírání od cca 25°,Směr otevírání: tlumené a pomalé otevírání od přibližně 60°,dveře jsou bezpečně zajištěny v otevřené poloze,Rozsah volného výkyvu mezi 25° a 60° |
| Montáž | | Pro použití na DIN levé a DIN pravé straně |
| Pro materiál dveří | | dřevo |
| Úhel otevření | | 80 – 140 ° |
| Pro šířku dveří | | ≤1,100 mm |
| Pro hmotnost dveří | | ≤45 kg |
| Hloubka podhledu | | ≤140 ° |