




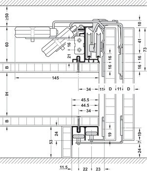
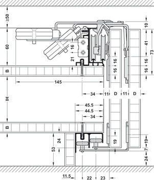
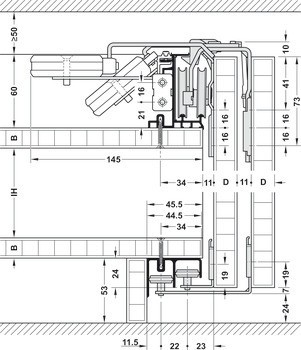
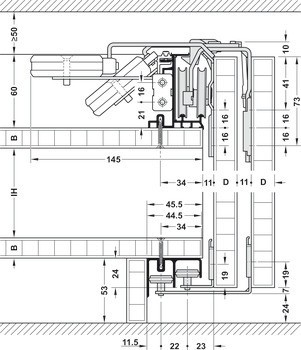
2 unášecí konzole
4 jednotek mechanismu tlumeného zavírání Smuso





| Verze | Na obou stranách |
|---|---|
| Rozsah použití | | Pro 2 dveře | Pro 3 dveře | Pro 4 synchronní dveřní křídla |
| Montáž | Vozík a klip vedení k přišroubování na dveřevedení k naklapnutíhorní pojezdová kolejnice k přišroubování do korpusu zevnitřspodní vodicí kolejnice k přišroubování do korpusu zevnitř |
| Vhodné pro | | Pro dveře o hmotnosti až 50 kg | Pro dveře o hmotnosti až 70 kg |