






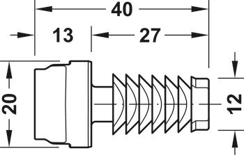
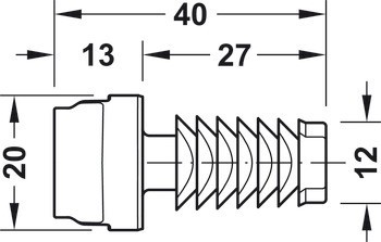
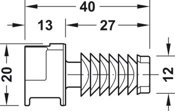
| Verze | | pro protlačení | s omezením polohy |
|---|---|
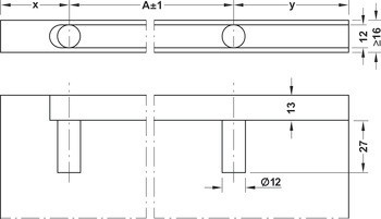
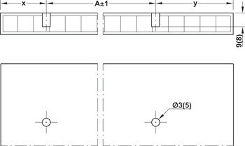
| Rozsah použití | | Pro skrytou montáž polic a vnitřní panely |
| Materiál | | Plast |
| Barva/povrchová úprava | | Bílá | Šedá |
| Pro tloušťku dřeva | | ≥16 mm |
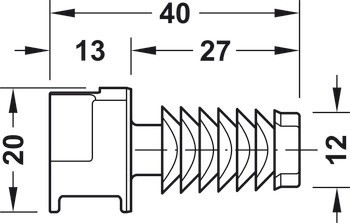
| Model | I 12/5 |
| Montáž | | K nasunutí do vyfrézované drážkyspojovací táhlo se zajistí ve spoji |