









| Rozsah použití | Pro dřevěné a skleněné dveře |
|---|---|
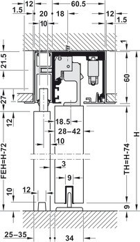
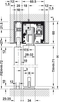
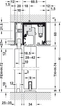
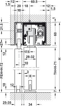
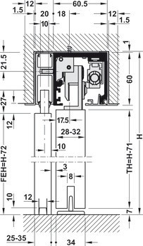
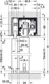
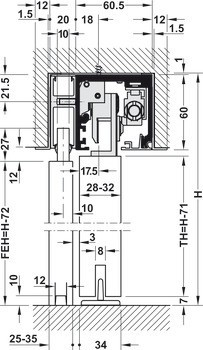
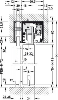
| Montáž | Zahnutý nosný krycí profil je nalepen na pojezdovou kolejnici zboku pomocí proužků lepidla a namontován na strop připevněnou pojezdovou kolejnicí |
| Materiál | Hliník |
| Barva/povrchová úprava | | Barva stříbra, elox | Černý, elox | Barva nerez, elox |
| Vhodné pro | Häfele Slido D-Line12 |
| Délka | | 2,000 mm | 3,000 mm |