




Upevňovací materiál obsažen





| Verze | Střední provozBez funkce trvalého otevřeníNastavitelná přídržná síla |
|---|---|
| Barva/povrchová úprava | Matná |
| Rozsah použití | Pro jednočinné dveřepro interiérové a exteriérové dveře |
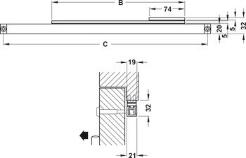
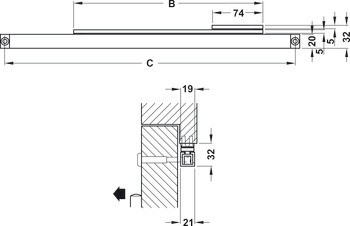
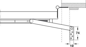
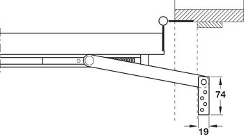
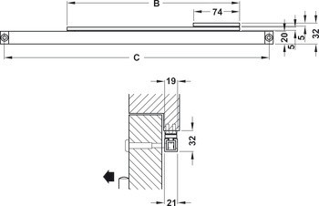
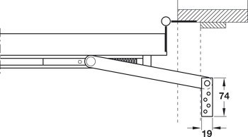
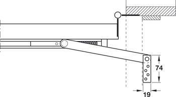
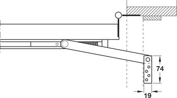
| Montáž | Pojezdová kolejnice k přišroubování na dveřní křídlomontážní podložka ramene k přišroubování na zárubeň |
| Materiál | Nerez |
| Vhodné pro | | Otvor 687–838 mm | Otvor 839–991 mm | Otvor 992–1143 mm |
| Montáž | Pro použití na DIN levé a DIN pravé straně |
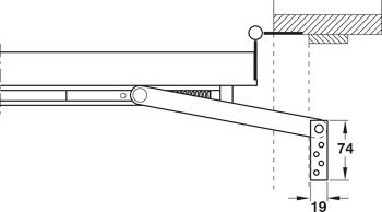
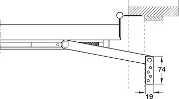
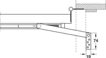
| Tloušťka dveří | 35 – 57 mm |
| Úhel otevření | 85 – 110 ° |
| Rozteč otvorů | | 530,00 mm | 492,00 mm | 448,00 mm | 530.0 mm | 492.00 mm |
| Délka ramene | | 480,00 mm | 373,00 mm | 570,00 mm | 480.00 mm | 570.0 mm |
| Funkce aretace v otevřené poloze | | Bez funkce trvalého otevření | S funkcí trvalého otevření |