




1 otočná koule
2 klíč
1 montážní šroub





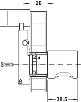
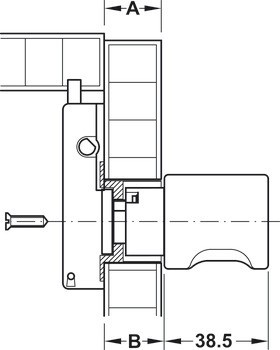
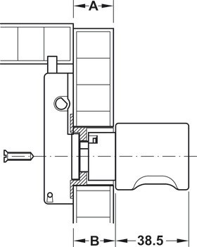
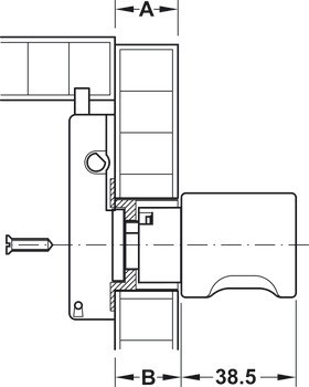
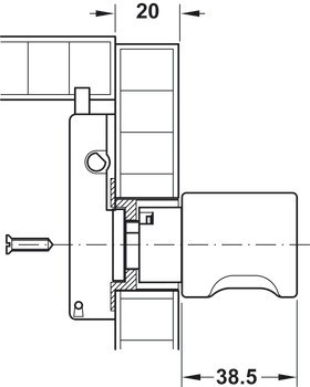
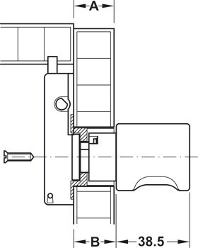
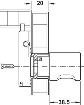
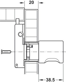
| Rozsah použití | Pro zámky se zámkovou rozetou ⌀ 30 mm |
|---|---|
| Montáž | | Pravý | Levé |
| Materiál | Tělo zámku: zinková slitinavložka: mosaz | Tělo: zinková slitina, vložka: mosaz |
| Materiál | Zinková slitina | Mosaz|Zinková slitina |
| Montáž | |
| Uzamykací série | | Individuální uzávěr | Individuální | S různými uzamykacími sériemi | H 1 |
| Typ uzávěru | s 5 pinovými stavítky |
| Zamykací systém | Standardní profil | Přizpůsobený standardní profil |
| Upřesnění | Chrom |