




1 převodový motor s krytkou a koncovými krytkami
1 ozubený řemen
1 konzole pro montáž řemene
1 montážní návod

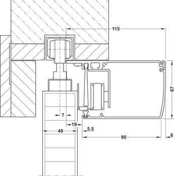
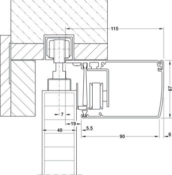
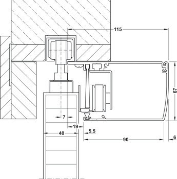
| Verze | | 1000 mm, pohon lze zkrátit na délku 530 mm, pro vnitřní otvor ≤ 910 mm |
|---|---|
| Rozsah použití | Pro soukromé rezidenční sektorypro 1křídlé posuvné dveře |
| Materiál | koncové krytky: plast |
| Barva/povrchová úprava | Barva stříbra, elox |
| Vlastnosti | Integrované mikroprocesorové řízenírozpoznání překážky (zastaví při otevírání a vrátí chod při zavírání), mechanismus vypnutírychlost otevírání 0,4 m/srychlost zavírání 0,2 m/ssíla pohonu 30 N30–60 cyklů za den1,5m napájecí kabel |
| Ovládání | otevírání tlačítkem (zajištěno na místě realizace) nebo volitelným pohybovým spínačem, zavírání tlačítkem (zajištěno na místě realizace) nebo časovačem, režim “push-and-go” pohybem dveřního křídla |
| Síťová frekvence | 50 Hz |
| Pro hmotnost dveří | ≤40 kg |
| Rychlost otevírání | 40.00 cm/s |
| Délka kabelu | 1,500.00 mm |
| Síla pohonu | 30.00 N |
| Napětí motoru | 24 V (DC) |
| Rychlost zavírání | 20.00 cm/s |