






| Verze | | Široký | Kryt s blokem pro nastavení a přírubu, plně sestavený, úzký |
|---|---|
| Barva/povrchová úprava | | matný |
| Rozsah použití | | Pro systém závěsů objektových dveří VXpro dřevěné rámové zárubněpro bezfalcové a falcové dveře |
| Materiál | | Nerez |
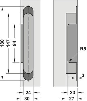
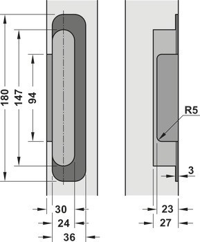
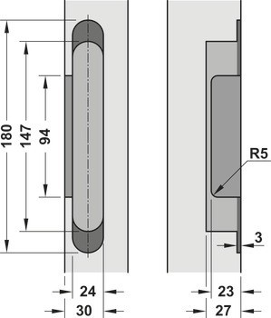
| Výška | | 180,00 mm | 180.0 mm |
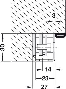
| Poznámka k montáži | 2. Fréza ⌀: 10 mmKryt s blokem pro nastavení a přírubu, plně sestavený |
| Zařízení pro nastavení | | Side adjustment ±3 mm, Height adjustment ±3 mm |
| Montáž | | Pro použití na DIN levé a DIN pravé straně |