




1 zámek s kryty
Upevňovací materiál
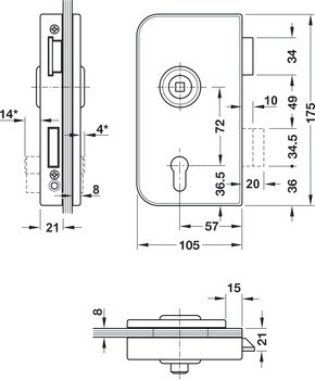
Montážní návod





| Verze | viditelné hrany skla v oblasti zámku,2dílný |
|---|---|
| Model | | 11.200 | 11.260 | 11.201 | 11.261 |
| Pro tloušťku skla | 8 – 10 mm |
| Backset | 57,00 mm | 57.00 mm | 57.0 mm |
| Montáž | | DIN levý | DIN pravý |
| Barva/povrchová úprava krytu | | Barva stříbra, elox | Barva nerez | matný |
| Zdvih závory | 2 otáčky |
| Ořech kliky | 8.0 mm | 8,00 mm | 8.00 mm |
| Rozteč | 72,00 mm | 72.00 mm | 72.0 mm |
| Pro typ skla | Tvrzené bezpečnostní sklo (ESG) |
| Materiál krytu | | Nerez | Hliník |
| Typ zámku | PC |
| Rozsah použití | Objekty |
| Vybavení | Nehlučná střelková závora|Převod |
| Verze ořechu kliky | Otvor pro čtyřhran |
| Vhodné pro | | Kliky s rozetami kliky | Kliky bez rozet kliky |
| Vhodnost podle DIN 18251 | Část 1, třída 3 |