







| Materiál | | Ocel | Mosaz |
|---|---|
| Barva/povrchová úprava | | Barva nerez | Barva stříbra, lakováno | leštěné, ochranný lak |
| Rozsah použití | Pro dřevěné zárubněpro falcové dveře |
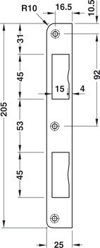
| Tloušťka | 1,50 mm |
| Délka x šířka mm | 205 x 25/25 mm |
| Montáž | Pro použití na DIN levé a DIN pravé straně |
| Konstrukce dveří | Falcové |
| Pro typ zárubně | Dřevěný rám |
| Kontura čelního plechu | | Kulaté | čtyřhranné |