




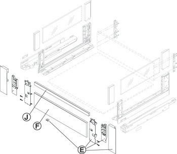
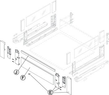
2 čelní držáky (levý/pravý)
2 vnější krytky (levá/pravá)
2 vnitřní krytky (levá/pravá)
1 podpěra pro čelní panel zásuvky se šrouby




| Barva/povrchová úprava | | Šedá Orion matná | hedvábná bílá | karbonově černá | Šedá (odpovídající barvě nerez) |
|---|---|
| Rozsah použití | Pro čelní prodloužení |
| Materiál | Čelní držák a vnější krytky: ocel/nerez, krytky uvnitř a podpěra: plast |
| Vhodné pro | čelní výsuv |
| Poznámka k montáži | Kompletní vnitřní zásuvka s výškou bočnice 177 mm je tvořena sadou čelního držáku, čelním dílem, unašečem a zásuvkou s výškou bočnice 177 mm. Detaily světlé montážní výšky a montážní rozměry zadního panelu jsou identické jako u výsuvu s výškou bočnice zásuvky 177 mm. |
| Model | |
| Model No. | ZI7.3CI0 | ZI7.3CS0 |