




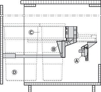
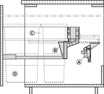
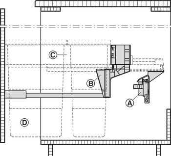
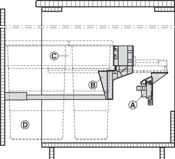
1 ocelový zadní panel
1 propojovací díl
1 levý a 1 pravý držák
1 levý a 1 pravý podélný reling, hranatý



| Verze | Elektrický pohon zásuvek pro systémy zásuvkových výsuvů s bočnicí Blum Tandemboxjemným zatažením nebo zatlačením (např. kolenem) na čelo zásuvky se otevře výsuv |
|---|---|
| Rozsah použití | Pro systémy třídění odpadu k zavěšení na systémy zásuvkových výsuvů s bočnicí |
| Barva/povrchová úprava | Bílý hliník, RAL 9006 |
| Model | | Z30M383S0W | Z30M433S0W | Z30M533S0W |
| Pro šířku korpusu | | 500,00 mm | 450,00 mm | 600,00 mm |
| Povrchová úprava | Bílý hliník, RAL 9006 |
| Pro tloušťku bočního panelu | 18 /19 mm |
| Model No. | | Z30M383S0W | Z30M433S0W | Z30M533S0W |