









| Verze | Pro použití v kombinaci s pouzdrem k přivaření |
|---|---|
| Barva/povrchová úprava | | Zinek | Černý, matný | matný | nikl | matný, nikl |
| Rozsah použití | | Pro ocelové zárubně s pouzdry k přivaření VARIANT V 8600S, V 8610 nebo V 8618pro falcové a bezfalcové vnitřní dveřepro použití na DIN levé a DIN pravé straně | Pro ocelové zárubně s pouzdry k přivaření VARIANT V 8600, V 8600 S, V 8610 nebo V 8618pro falcové a bezfalcové vnitřní dveře |
| Materiál | | Nerez | Ocel |
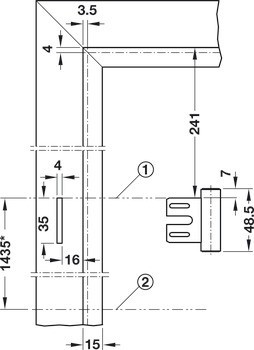
| Montáž | Pro použití na DIN levé a DIN pravé straně |
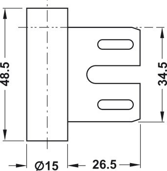
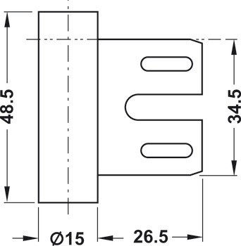
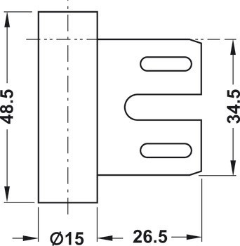
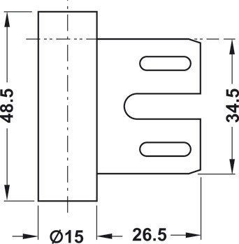
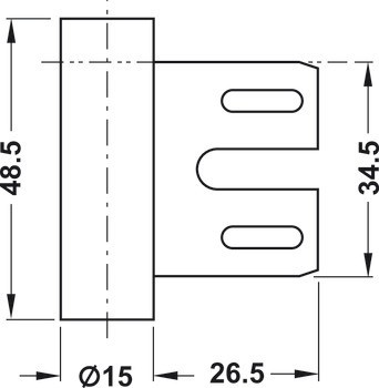
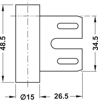
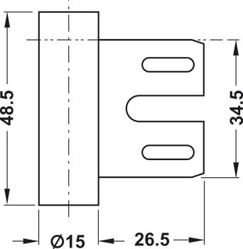
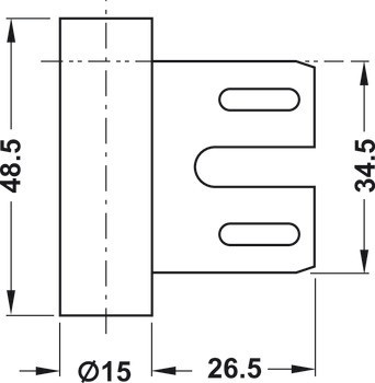
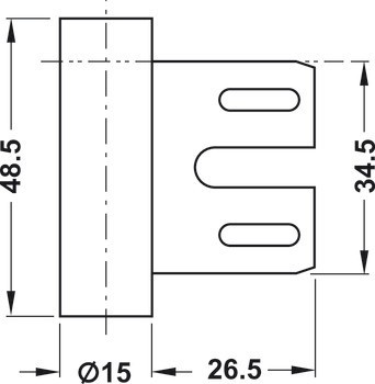
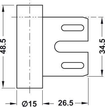
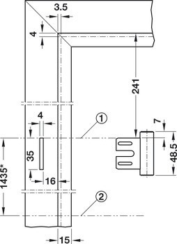
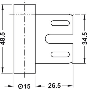
| Průměr patice | 15,00 mm | 15,0 mm |
| Šířka dveří max. | 1.000,00 mm | 1.000,0 mm |
| Poznámka ke hmotnosti dveří | S V 0026 WF dílem na dveřní křídlo ≤ 70 kgS V 0037 WF dílem na dveřní křídlo ≤ 80 kgS V 0087 WF dílem na dveřní křídlo ≤ 70 kg |
| Typ ložiska | Kluzné ložisko, bezúdržbové |
| Hmotnost dveří | 70 – 80 kg |