








| Barva/povrchová úprava | | nikl | Černý, nikl |
|---|---|
| Rozsah použití | Pro široké dřevěné dveře |
| Montáž | dveře ke korpusu nasunutím, závěs podporuje montáž nacvaknutím |
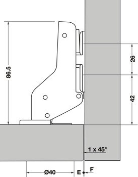
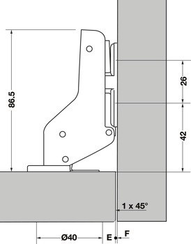
| Zařízení pro nastavení | boční nastavení od -4/+0 mm, nastavení hloubky od -2,5/+1,5 mm, nastavení výšky od ±3 mm |
| Materiál | Miska: Zinková slitina, Ramínko závěsu: Ocel |
| Typ zalomení | Velmi zalomené |
| Verze nábytkového závěsu | vložka |
| Hloubka vrtání misky | | 15,00 mm | 15.00 mm |
| Verze | | S automatickou dovírací mechanikou | Bez automatické zavírací pružiny |
| Montáž misky závěsu | k přišroubování |
| Úhel otevření | 93° |