





| Rozsah použití | Pro odlehčené konstrukční desky s horní vrstvou tloušťky 8 mm a více k přímému přišroubování |
|---|---|
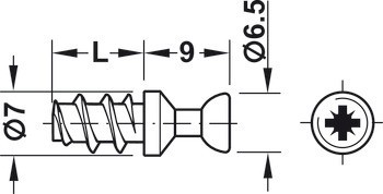
| Délka závitu | 7.50 mm |
| Typ závitu | Speciální závit |
| Pro průměr vrtaného otvoru | 5.00 mm |
| Materiál | Zinková slitina |
| Barva/povrchová úprava | prázdné |
| Montáž | k přímému přišroubování |
| Drážka | Křížová drážka PZ2 |
| Závit | Speciální závit |