









| Verze | Lze zkrátit |
|---|---|
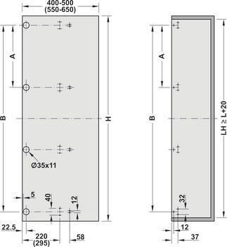
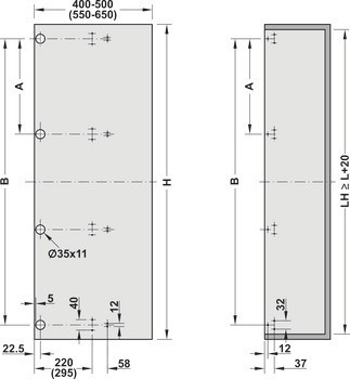
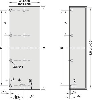
| Délka | | 1,740.00 mm | 2.040,00 mm | 540,00 mm | 840,00 mm | 1.140,00 mm | 1.440,00 mm |
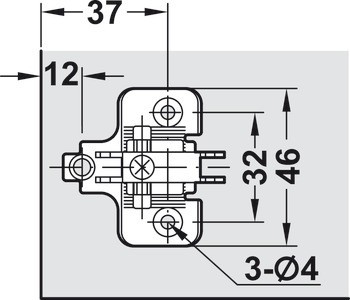
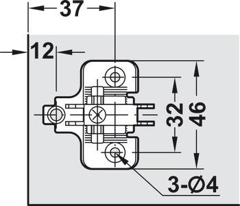
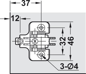
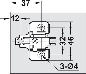
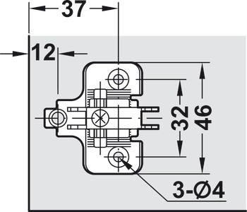
| Barva/povrchová úprava | nikl |
| Rozsah použití | Pro jednoduché dveře, dvojité dveře s rovným designem korpusu a pro rohová řešení |
| Materiál | Hliník |
| Model | Swingfront 24 FB |