








| Rozsah použití | Pro šatní skříně |
|---|---|
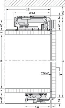
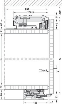
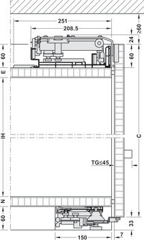
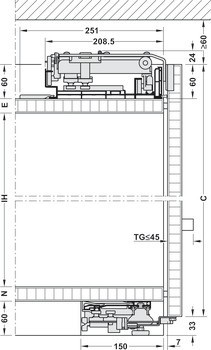
| Zařízení pro nastavení | Height adjustment: -5 – 5 mm, Side adjustment: 3.5 mm, Svisle ±5 mm, vodorovně ±3,5 mmpřední dveře: nahoře ±3 mm, dole ±3 mmpomocí vnitřního šestihranu |
| Pro tloušťku dveří | 18 – 40 mm |
| Pro materiál dveří | dřevo |
| Výška dveří max. | 2.700,00 mm |
| Design skříně | šatní skříně|například se 2 symetrickými dveřními křídly nebo pro jedny jednoduché dveře a zásuvky |
| Sada | Sada bez kolejnic |
| Pro výšku dveří | ≤2,700 mm |
| Poznámka ke hmotnosti dveří | Doporučujeme dodržet minimální hmotnost dveří. |
| Počet dveří v systému max. | 2 |
| Počet dveří | 2,00 |
| Mechanismus tlumeného zavírání | s mechanismem tlumeného zavírání |
| Tloušťka dveří max. včetně úchytky | 40,00 mm |
| Nastavení výšky | -5 – 5 mm |
| Pro šířku dveří | 800 – 1,600 mm |
| Pro hmotnost dveří | 25 – 50 kg |
| Materiál/Povrchová úprava | HliníkKolečka: Plast |
| Poloha pojezdu | Nahoře |
| Uložení vozíku | Kuličkové ložisko |
| Nastavení dveří přes | imbus |
| Další mechanismus nastavení | Svisle ±5 mm, vodorovně ±3,5 mmpřední dveře: nahoře ±3 mm, dole ±3 mmpomocí vnitřního šestihranu |
| Vzdálenost od úchytky k hraně dveří min. | 10,00 mm |
| Pro světlou šířku korpusu | | 1531 – 1,930 mm | 1931 – 2,330 mm | 2331 – 2,370 mm | 2731 – 3,200 mm |
| Verze pojezdové kolejnice | Bez pojezdové kolejnice |
| Verze vodicí kolejnice | Bez vodicí kolejnice |