




1 vložka s knobkou
2 klíče
1 montážní šroub




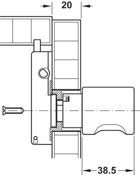
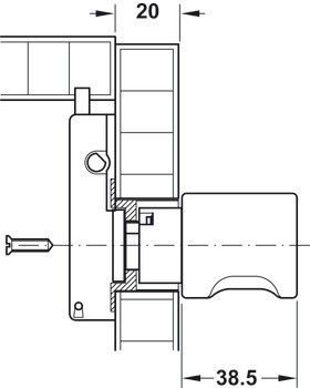
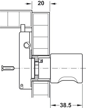
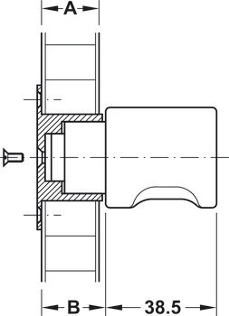
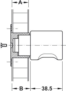
| Rozsah použití | Pro zámky se zámkovou rozetou ⌀ 30 mm |
|---|---|
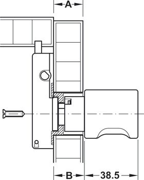
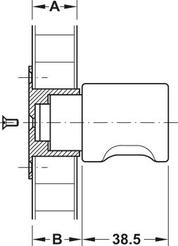
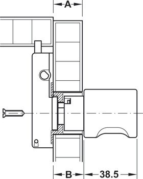
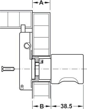
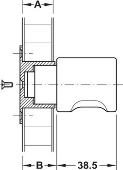
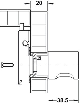
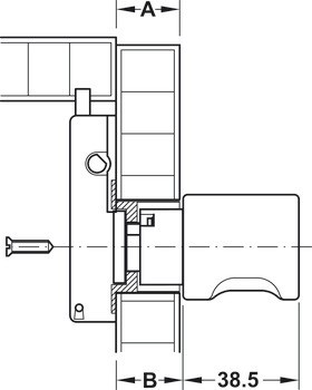
| Montáž | | Pravý | Levé |
| Materiál | Mosaz|Zinková slitina |
| Barva/povrchová úprava | chrom, matný |
| Vhodné pro | zámky se zámkovou rozetou Ø 30 mm |
| Uzamykací série | | Individuální uzávěr | S různými uzamykacími sériemi | H1 |
| Typ uzávěru | s 5 pinovými stavítky |
| Zamykací systém | Standardní profil |
| Typ uzavření | | Individuální uzávěr | Společný uzávěr |
| Montáž | | pravé | levé |