




S montážním návodem

| Verze | | Se zapuštěnou úchytkoupro použití za čelními panely nebo otočnými dveřmi |
|---|---|
| Barva/povrchová úprava | | Koš: chromVýsuvy: pozink, Koš: chromvýsuvy: pozink |
| Rozsah použití | |
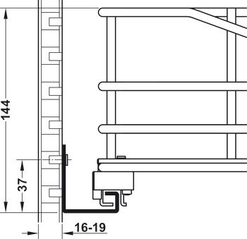
| Montáž | | K přišroubování na boční panel |
| Materiál | | Ocel |
| Vhodné pro | | Se zapuštěnou úchytkoupro použití za čelními panely nebo otočnými dveřmi |
| Vlastnosti | |
| Pro šířku korpusu | 600,00 mm |
| Nosnost | | 30,00 kg |
| Montážní hloubka | 515 mm |
| Montážní hloubka | |
| Pro šířku korpusu | |
| Způsob vysunutí | |
| Způsob vysunutí | Plnovýsuv s integrovaným mechanismem tlumeného zavírání |
| Velikost koše (Š x H x V) | | 514 x 475 x 115 mm |
| Mechanismus tlumeného zavírání |