


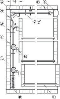
| Verze | S pružinou a vodítkem tyče |
|---|---|
| Barva/povrchová úprava | Lesklá |
| Rozsah použití | Pro zamykání několika zásuvek |
| Montáž | k přišroubování, s výškově nastavitelnými pružinovými záskočkami, vodítka pro zamykací tyče |
| Materiál | Ocel |
| Vhodné pro | Lze kombinovat s centrálními tlačnými zámky nebo zámky k přišroubování |
| Typ produktu | Zamykací tyč |
| Délka | 600 mm |