







| Verze | | Bez CP | Volitelně s podpěrnými čepy 12 x 50 mm |
|---|---|
| Barva/povrchová úprava | | Černý, matný | matný | matný, nikl |
| Rozsah použití | pro dřevěné, ocelové nebo hliníkové zárubně,pro bezfalcové objektové dveře |
| Materiál | | Nerez | Ocel |
| Model | VX 7729/160 |
| Pin Diameter | 10,00 mm |
| Modely | VX 7729/160 |
| Montáž | Pro použití na DIN levé a DIN pravé straně |
| Tvar příruby | kulaté |
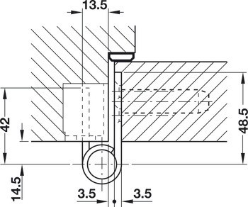
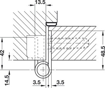
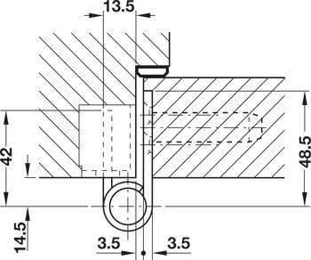
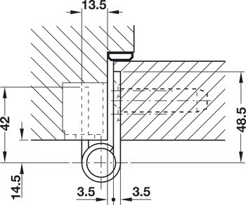
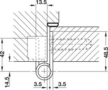
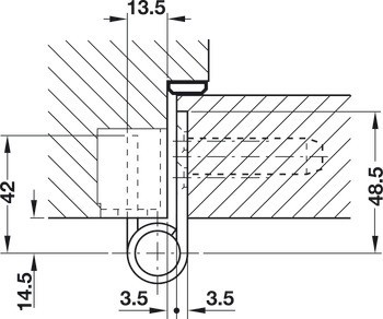
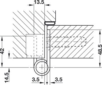
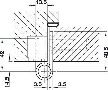
| Tloušťka příruby | 3,50 mm |
| Průměr patice | 22,50 mm |
| Typ ložiska | Axiálně-radiální kluzné ložisko, bezúdržbové |
| Výška příruby | 160 mm / 84 mm |
| Průměr frézovacího bitu | 24,00 mm |
| Poloměr | 12,00 mm |
| Pro typ zárubně | Ocelový rám|Dřevěný rám|Hliníkový rámeček |
| Max. hmotnost dveří pro 2 závěsy | 200,00 kg |
| Norma | Vydání EN 1935:2002 |
| Třída | 4|7|7|1|1|4|1|14 | 4|7|7|1|1|0|1|14 |
| Poznámka | Odolnost proti korozi 0/1/4:0 = ocel, leštěná mosaz/matný nikl1 = ocel, matný chrom4 = saténový nerez |
| Délka patice | 160,00 mm |
| Pojistka | bez bezpečnostního čepu |