




1 uvolňovací podložka pro mechanismus tlumeného dotahu
1 SW3 a SW4 imbus klíč, zkrácený
1 montážní návod

| Rozsah použití | Příslušenství pro pevný prvek a integrovanou montáž na strop Häfele Slido D-Line12Pro dřevěné dveře a skleněné dveře |
|---|---|
| Model | 50F / 80F / 120F pro skleněné dveře, 50E / 80E / 120E pro dřevěné dveře |
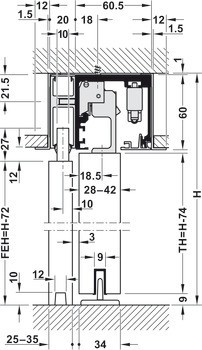
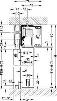
| Pro tloušťku dveří | 28 – 32 mm |
| Počet dveří | 1,00 |
| Nastavení výšky | -3 – 3 mm |
| Pro hmotnost dveří | ≤120 kg |
| Pro tloušťku skla s tvrzeným bezpečnostním sklem (ESG) | 8 mm|10 mm |
| Pro tloušťku skla s vrstveným bezpečnostním sklem (VSG) | 8–8,7 mm|10–10,7 mm |