








| Rozsah použití | Pro nástěnnou jednotku |
|---|---|
| Montáž | | Levá | Pravá |
| Norma | | Uvedená nosnost držáku skříňky je na kus a v souladu s požadavky normy DIN EN 15939. |
| Materiál | Ocel |
| Barva/povrchová úprava | | Zinek | nikl, Zinek |
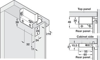
| Poznámka k montáži | Pro nastavení použijte pouze šroubovák. |
| Zařízení pro nastavení | | Side adjustment 18 mm, Height adjustment 16 mm, Depth adjustment 14 mm | Side adjustment 5 mm, Height adjustment 16 mm, Depth adjustment 14 mm |
| Verze produktu | Viditelné uvnitř korpusu |
| Nosnost | 45,00 kg | 45.00 kg | 52,00 kg | 52.00 kg |
| Montáž | | Pravé | Levé |
| Nosnost na jeden pár | | 130,00 kg | 104,00 kg | 130.00 kg | 104.00 kg |